Pukekohe Franklin
35 Muster Road

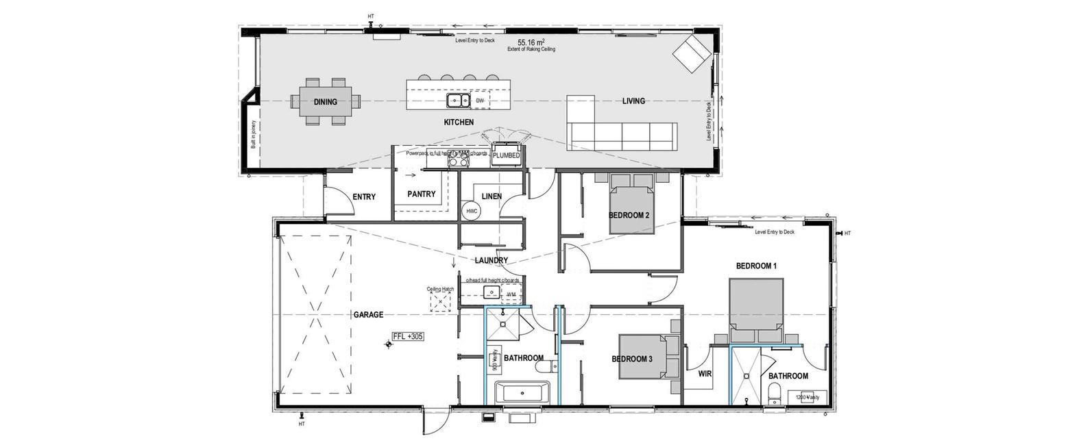
- Number of bedrooms:3
- Number of bathrooms:2
- Number of toilets:2
- Number of living spaces:1
- Garaging:2
- Floor size:179m²
This delightful home features three spacious bedrooms and two stylishly designed bathrooms, making it ideal for family living. The thoughtful layout enhances the home's flow, providing comfort and functionality. With an internal access double garage, convenience is at your fingertips. The property also showcases beautifully landscaped grounds, complete with fully fenced sections and driveways, ensuring privacy and security for your family. Enjoy the perfect blend of style and practicality in this well-appointed residence!
Reynolds Green is Pukekohe's newest community. Located in the highly sought after 'Valley,' this development has been designed with residents at the forefront of mind.
Protected bush at the Northern end of the development provides a beautiful outlook for most homes. There will be a publicly vested and extensively planted stream flowing through the middle of the development that will truly give you the feeling of 'Green.'
Opening Times
Share this Property
Explore Floor Plans
Property Details
- Dwelling Size: 179m2
- Land Size: 579m2
Property Features
- Number of bedrooms:3
- Number of bathrooms:2
- Number of toilets:2
- Number of living spaces:1
- Garaging:2
- Landscaping:✓
- Floor size:179m²


Explore Floor Plans
Property Details
- Dwelling Size: 179m2
- Land Size: 579m2
Property Features
- Number of bedrooms:3
- Number of bathrooms:2
- Number of toilets:2
- Number of living spaces:1
- Garaging:2
- Landscaping:✓
- Floor size:179m²
Talk to the team






