Buy a home and get a $10k holiday!
Learn More$951k

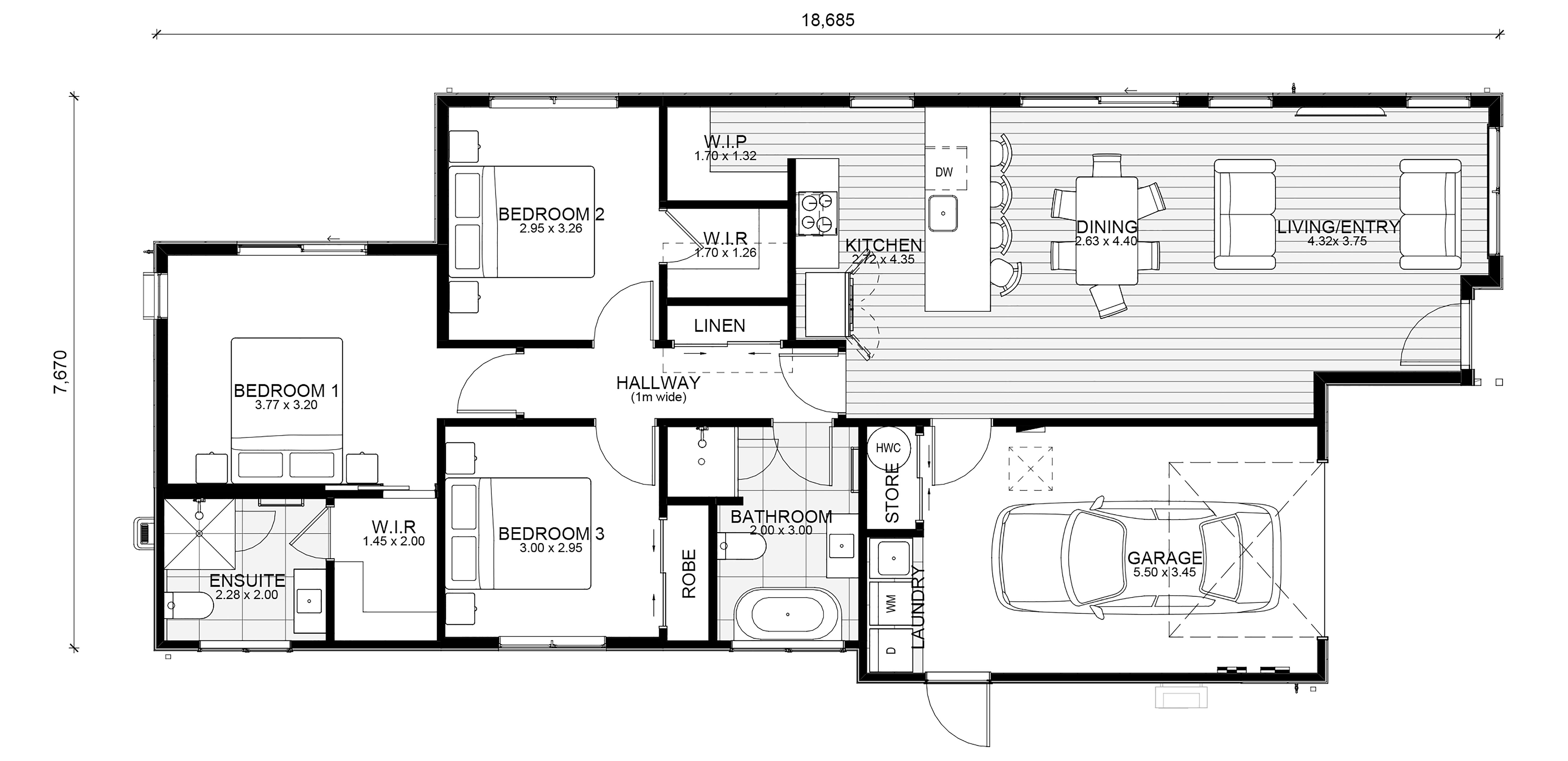
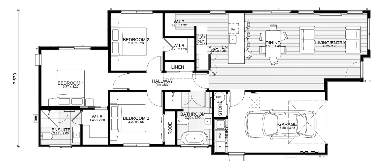
This spacious home has a thoughtful floor plan that combines 3 double bedrooms, 1 bathrooms and an ensuite, with a superb open plan living area. The well-appointed kitchen flows nicely with the North facing dining and living areas to create an overall space that opens out onto the outdoor entertaining area. Finished with quality fixtures and fittings throughout, a fully landscaped section and single garage, this home offers great value and an easy lifestyle.

