$1.05m

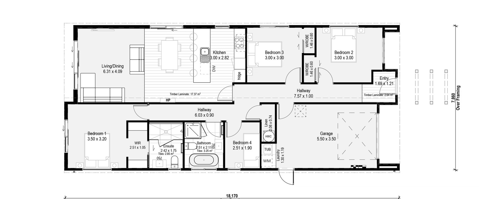
This stylish 4 double bedroom home has a spacious open plan design and a North facing easy care section that is fully landscaped and ideal for relaxing and entertaining. All of the bedrooms are well appointed, with a separate family bathroom and ensuite. The home has been finished to a high standard with quality fixtures and fittings throughout. It offers an internal access double garage and has all driveways and fencing included in the sale price.

