House 2 River Stone,
50a River Stone Drive
Under Offer
Turn Key
Complete
$649k

- Number of bedrooms:2
- Number of bathrooms:1
- Number of toilets:1
- Number of living spaces:1
- Number of office spaces:1
- Garaging:1
- Landscaping:✓
- Floor size:98m²
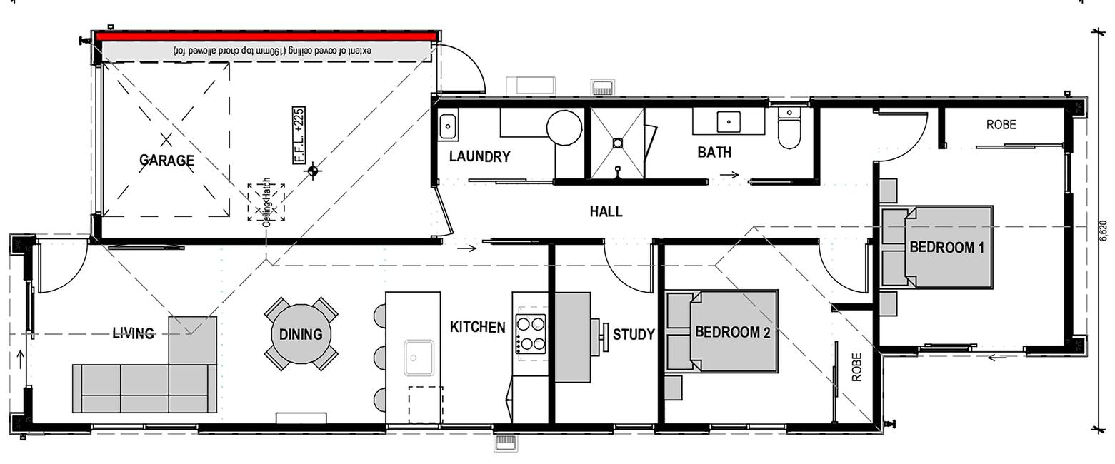
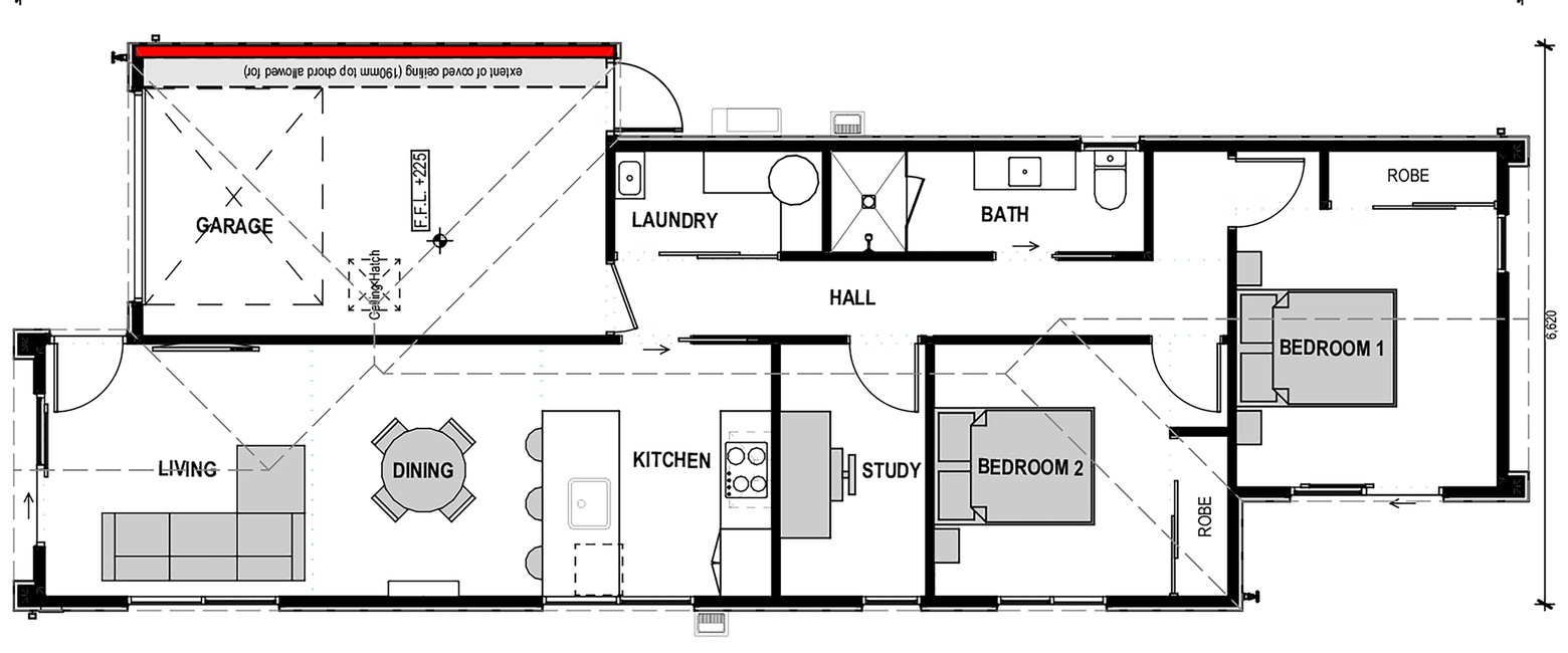
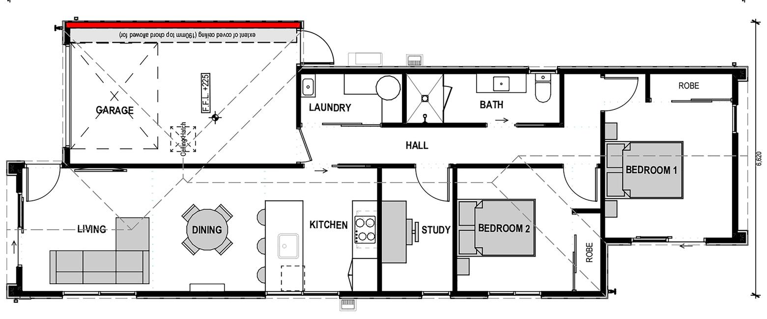
This home combines a practical floor plan with attention to detail to maximise functionality and lifestyle. The two double bedrooms are complemented by a study, family bathroom and an open plan kitchen, dining and living area. This North-facing living area opens out onto the fully landscaped section and outdoor entertaining space. An internal access single garage completes the package.
Explore Floor Plans
Property Details
- Dwelling Size: 98m2
- Land Size: 224m2
Property Features
- Number of bedrooms:2
- Number of bathrooms:1
- Number of toilets:1
- Number of living spaces:1
- Number of office spaces:1
- Garaging:1
- Landscaping:✓


Explore Floor Plans
Property Details
- Dwelling Size: 98m2
- Land Size: 224m2
Property Features
- Number of bedrooms:2
- Number of bathrooms:1
- Number of toilets:1
- Number of living spaces:1
- Number of office spaces:1
- Garaging:1
- Landscaping:✓