$729k

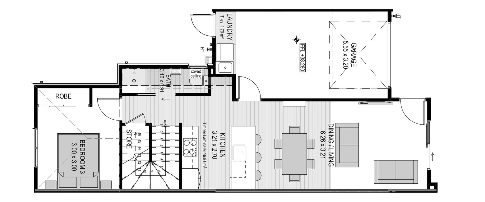
This well designed three bedroom home suits a variety of lifestyles. The open plan kitchen, dining, and living area flows to the outdoor space and an internally accessed single garage. A bedroom and bathroom are located on the ground floor, offering flexible living options. Upstairs, the master includes an ensuite and walk in wardrobe, while the third bedroom is serviced by a stylish main bathroom. Conveniently located near schools and local amenities, this home offers great value.

