Lot 59 Spring Grove,
64 Blakes Road
Turn Key
Under Construction
$829k

- Number of bedrooms:3
- Number of bathrooms:2
- Number of toilets:2
- Number of living spaces:1
- Garaging:2
- Landscaping:✓
- Floor size:153m2
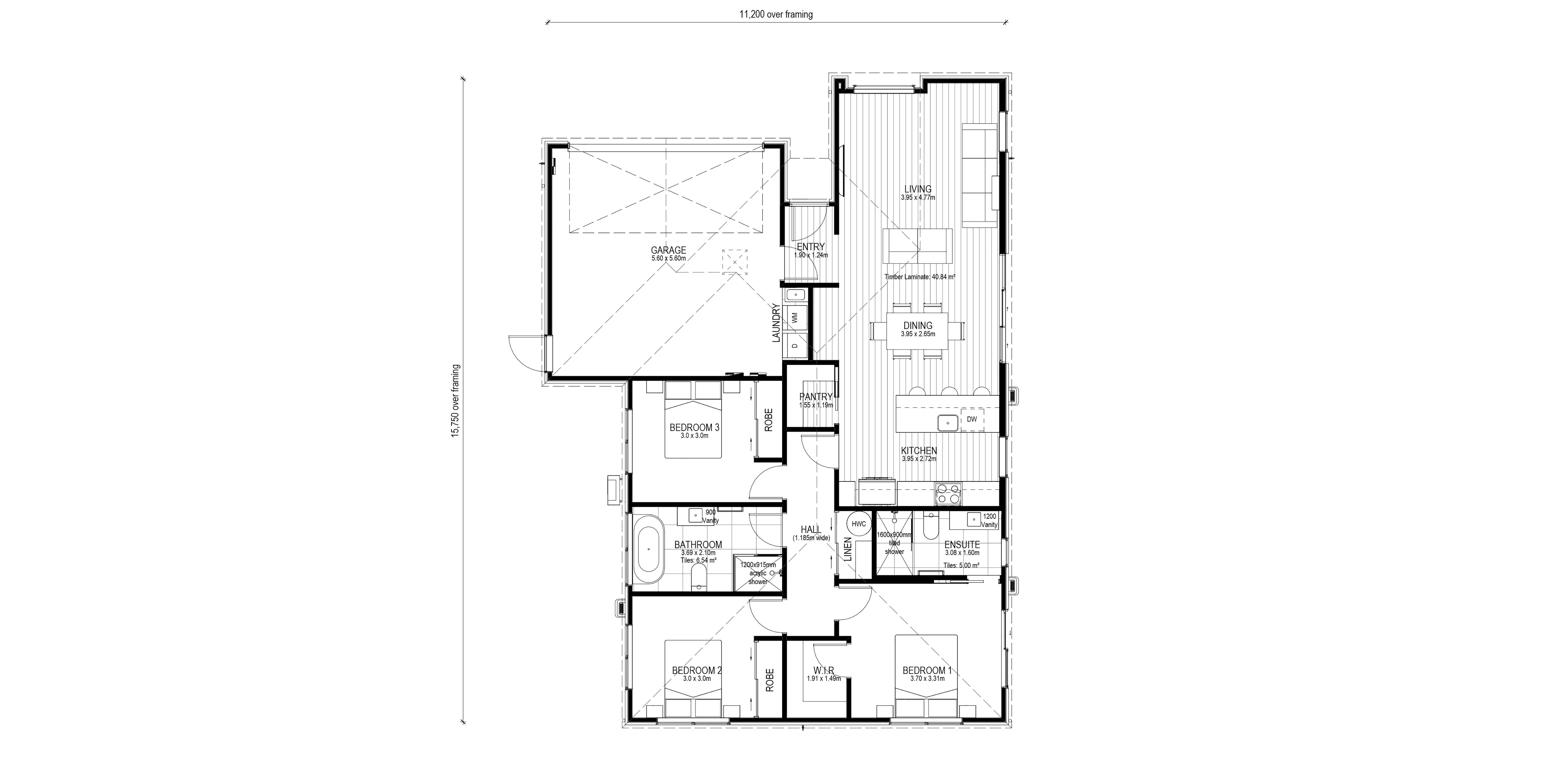
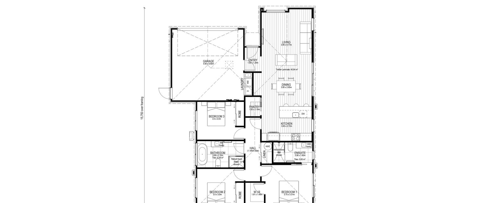
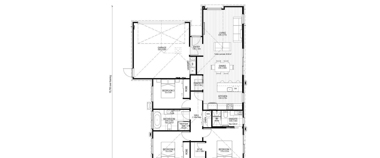
This well-designed three bedroom home offers a spacious open-plan living, kitchen, and dining area that maximises space and promotes seamless indoor-outdoor flow. A fully landscaped private section provides the ideal setting for entertaining, while the internal access double garage adds everyday convenience. Both the family bathroom and ensuite are beautifully appointed with quality fixtures and fittings, complementing the home’s stylish design.
Explore Floor Plans
Property Details
- Dwelling Size: 153m2
- Land Size: 378m2
Property Features
- Number of bedrooms:3
- Number of bathrooms:2
- Number of toilets:2
- Number of living spaces:1
- Garaging:2
- Landscaping:✓


Explore Floor Plans
Property Details
- Dwelling Size: 153m2
- Land Size: 378m2
Property Features
- Number of bedrooms:3
- Number of bathrooms:2
- Number of toilets:2
- Number of living spaces:1
- Garaging:2
- Landscaping:✓