$679k

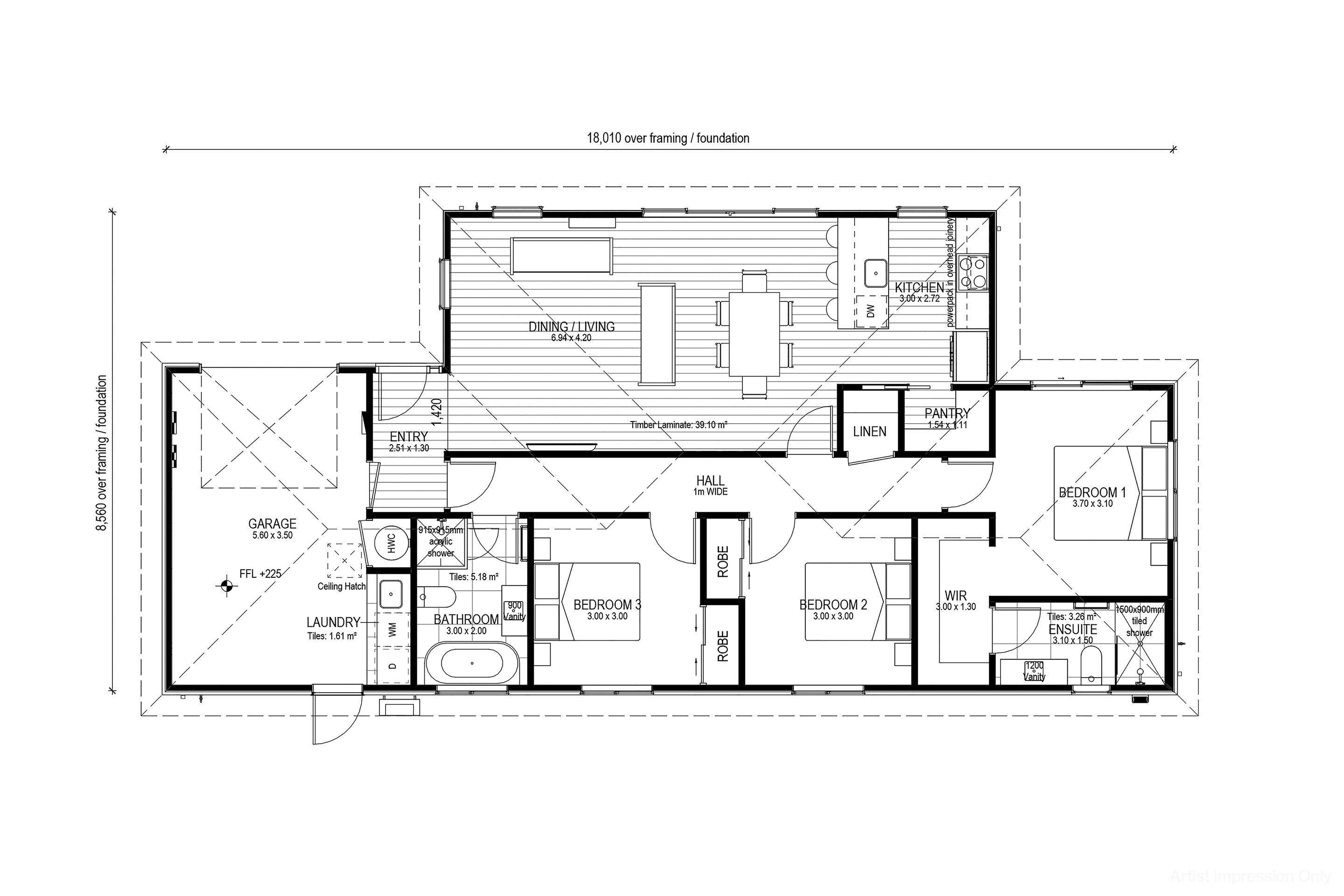
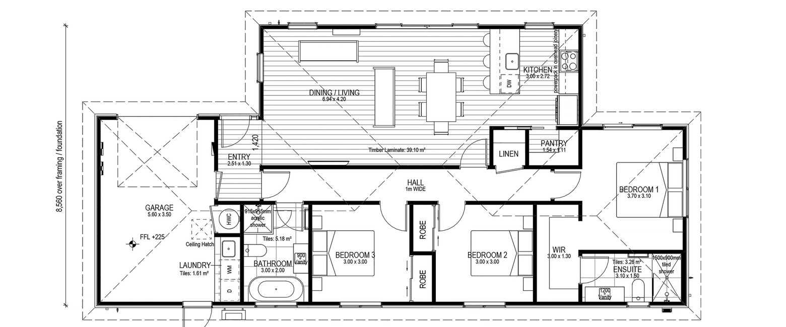
This 3 double bedroom, double garage, fully landscaped home has been designed to maximise space and sun. The North facing open plan living, dining and kitchen area forms the centre of the home and offers great indoor/outdoor flow. The well-appointed family bathroom and ensuite both feature quality fixtures and fittings that complement the spacious bedroom and living areas.

