Lot 3,,
29 Rayner Street
Turn Key
Under Construction
$659k

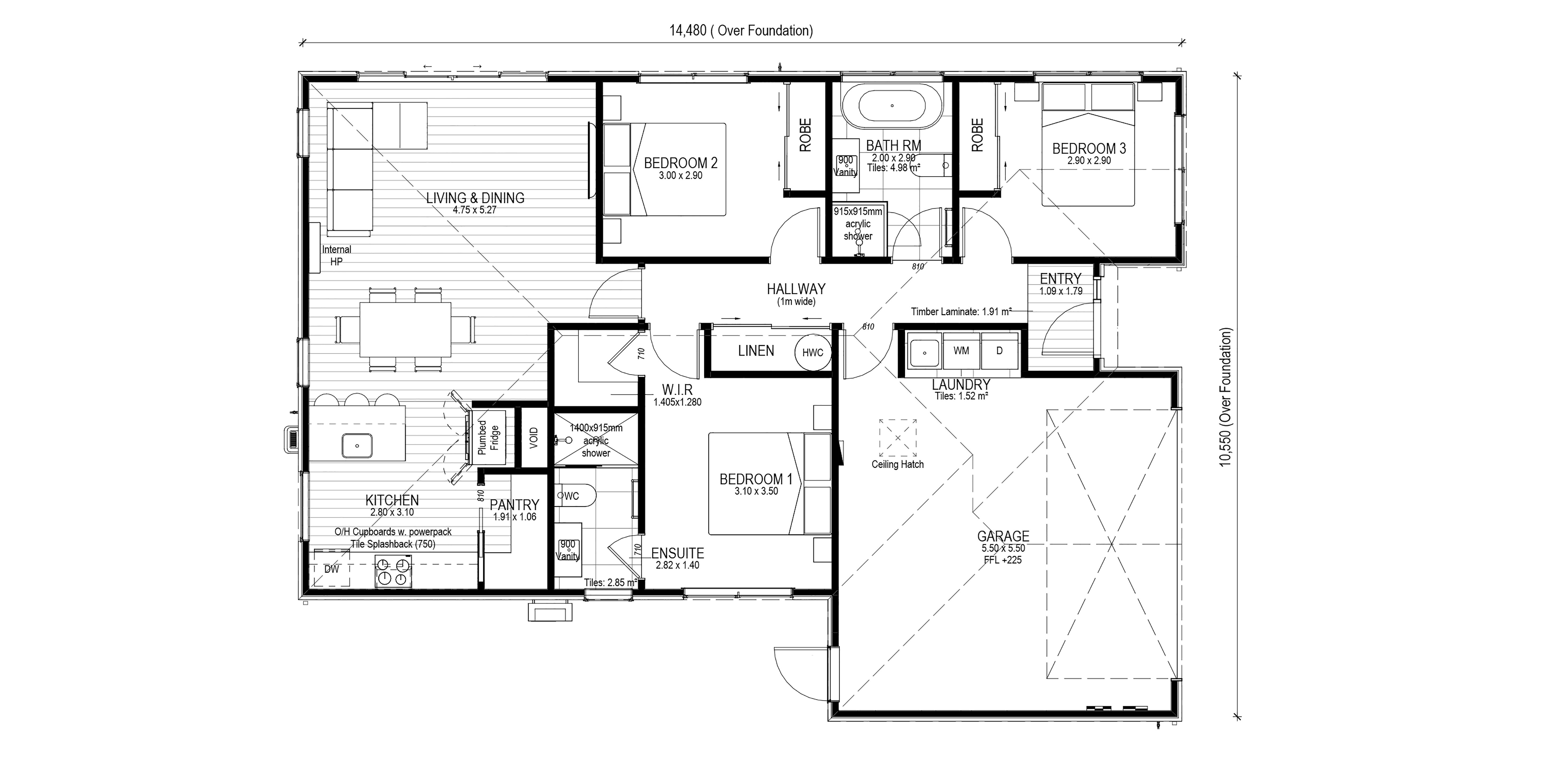
- Number of bedrooms:3
- Number of bathrooms:2
- Number of toilets:2
- Number of living spaces:1
- Garaging:2
- Landscaping:✓
- Floor size:133m2
This attractive 3 double bedroom, 2 bathroom home has a spacious and practical floor plan that would suit a range of people and lifestyles. A North facing open plan living/dining/kitchen area offers easy access to the outdoor entertaining area within the fully landscaped section. The home also offers an internal access double garage and quality fixtures and fittings throughout, plus it benefits from a good location close to all amenities.
Explore Floor Plans
Property Details
- Dwelling Size: 133m2
- Land Size: 360m2
Property Features
- Number of bedrooms:3
- Number of bathrooms:2
- Number of toilets:2
- Number of living spaces:1
- Garaging:2
- Landscaping:✓


Explore Floor Plans
Property Details
- Dwelling Size: 133m2
- Land Size: 360m2
Property Features
- Number of bedrooms:3
- Number of bathrooms:2
- Number of toilets:2
- Number of living spaces:1
- Garaging:2
- Landscaping:✓