Lot 194 Bellgrove,
18 Peirse Road
Turn Key
$990k

- Number of bedrooms:4
- Number of bathrooms:2
- Number of toilets:3
- Number of living spaces:2
- Garaging:2
- Landscaping:✓
- Floor size:199m²
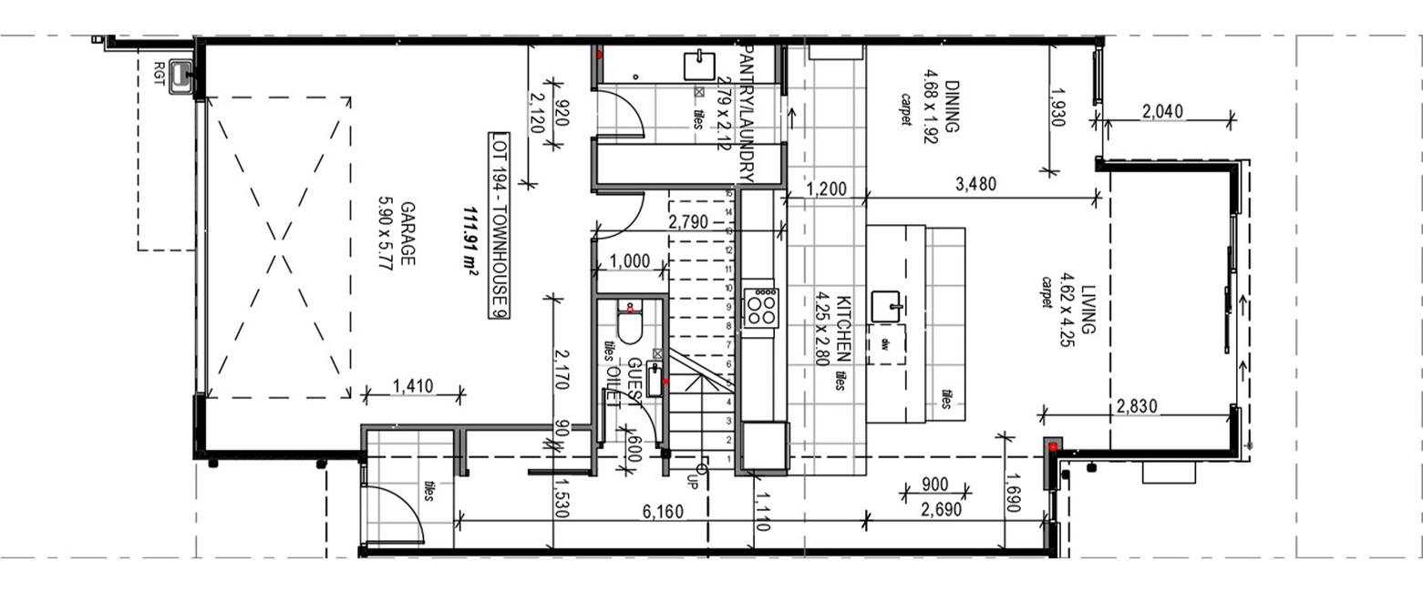
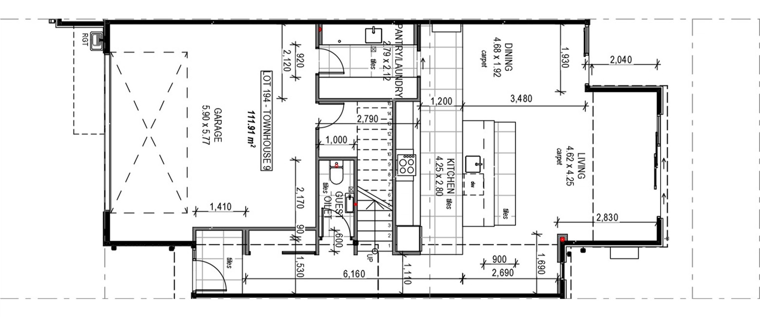
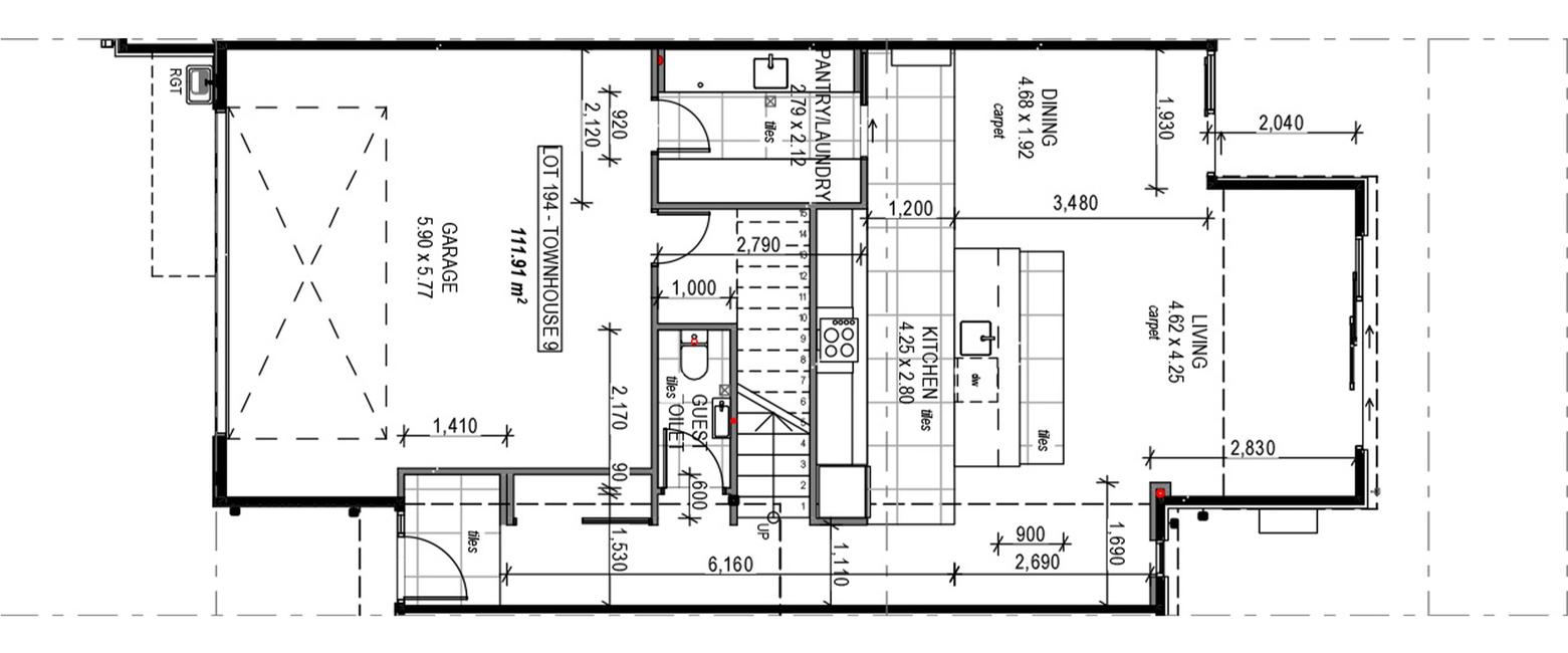
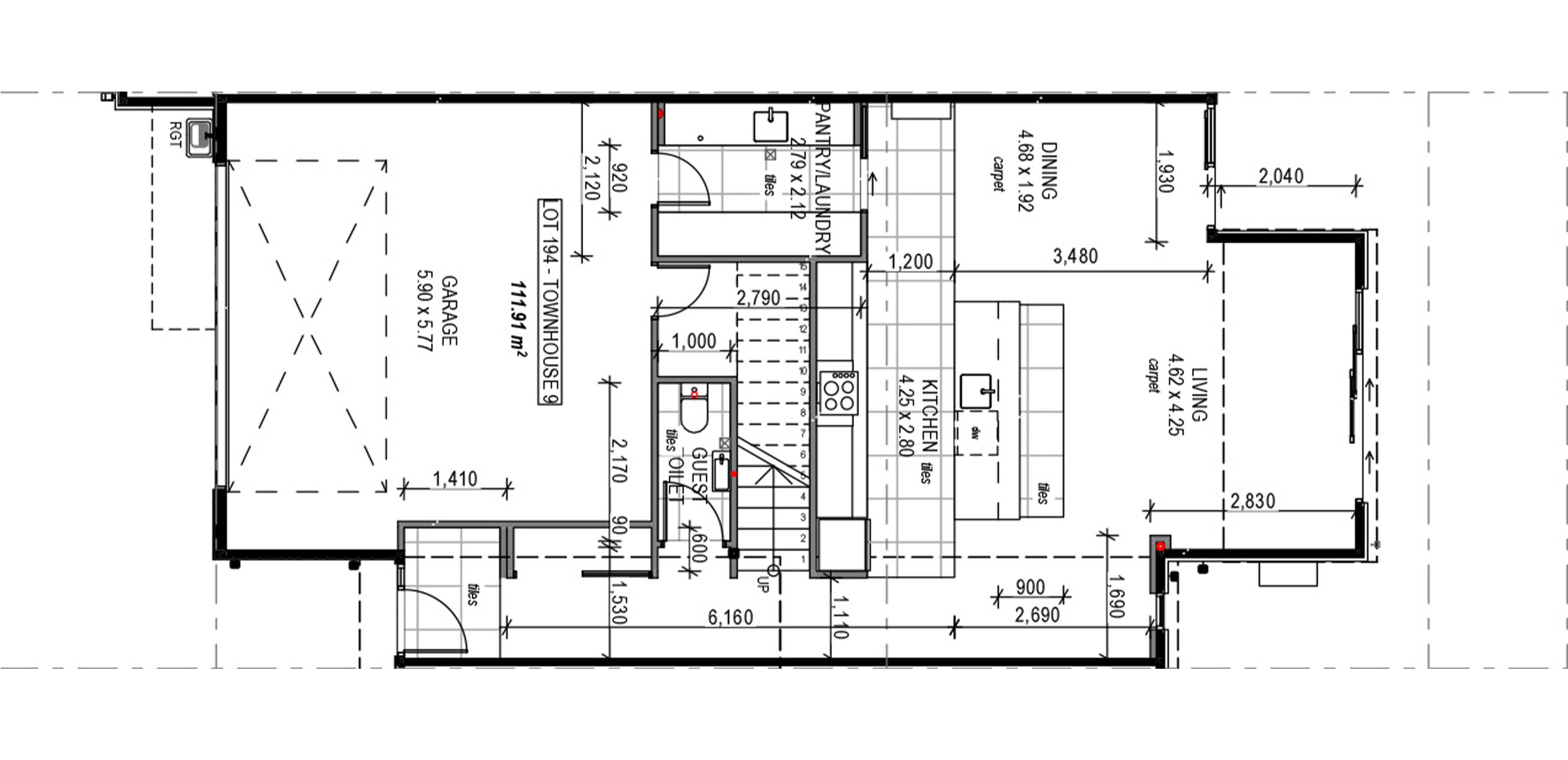
This spacious home has a thoughtful floor plan that combines four double bedrooms, two bathrooms and a separate WC, with a superb open plan living area. The well-appointed kitchen flows nicely with the North facing dining and living areas to create an overall space that opens out onto the outdoor entertaining area. Finished with quality fixtures and fittings throughout and a landscaped section, this home offers great value and an easy lifestyle.
Explore Floor Plans
Property Details
- Dwelling Size: 199m2
- Land Size: 239m2
Property Features
- Number of bedrooms:4
- Number of bathrooms:2
- Number of toilets:3
- Number of living spaces:2
- Garaging:2
- Landscaping:✓


Explore Floor Plans
Property Details
- Dwelling Size: 199m2
- Land Size: 239m2
Property Features
- Number of bedrooms:4
- Number of bathrooms:2
- Number of toilets:3
- Number of living spaces:2
- Garaging:2
- Landscaping:✓