Lot 414 Beach Grove,
Waiotahi Road
Turn Key
$659k

- Number of bedrooms:2
- Number of bathrooms:1
- Number of toilets:1
- Number of living spaces:1
- Garaging:1
- Landscaping:✓
- Floor size:117m²
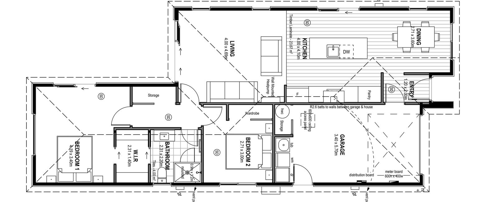
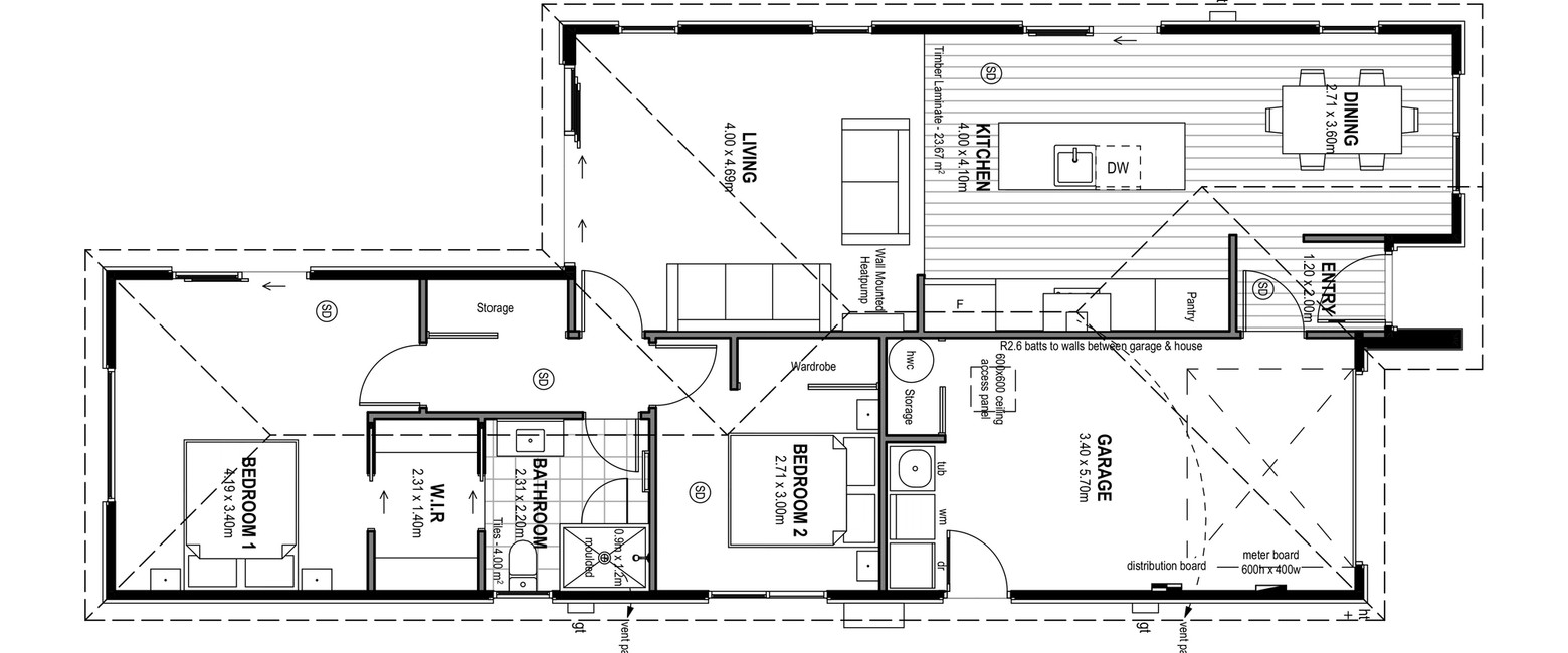
This stylish home combines a practical floor plan with attention to detail to maximise functionality and lifestyle. The two double bedrooms are complemented by a family bathroom as well as a spacious open plan kitchen, dining and living area. This well-appointed North facing living area opens out onto the landscaped section and outdoor entertaining area. An internal access single garage completes the package.
Explore Floor Plans
Property Details
- Dwelling Size: 117m2
- Land Size: 300m2
Property Features
- Number of bedrooms:2
- Number of bathrooms:1
- Number of toilets:1
- Number of living spaces:1
- Garaging:1
- Landscaping:✓


Explore Floor Plans
Property Details
- Dwelling Size: 117m2
- Land Size: 300m2
Property Features
- Number of bedrooms:2
- Number of bathrooms:1
- Number of toilets:1
- Number of living spaces:1
- Garaging:1
- Landscaping:✓