Lot 415 Beach Grove,
Waiotahi Road
Turn Key
$715k

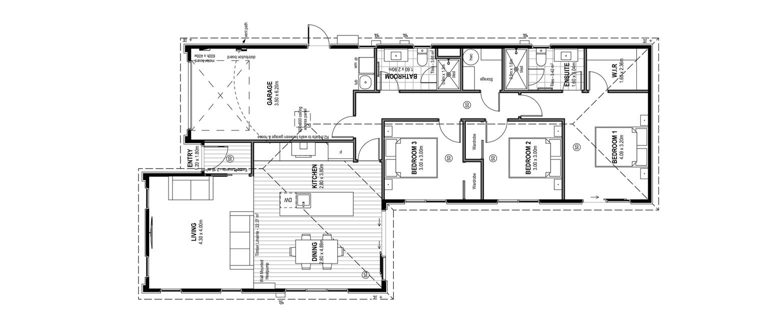
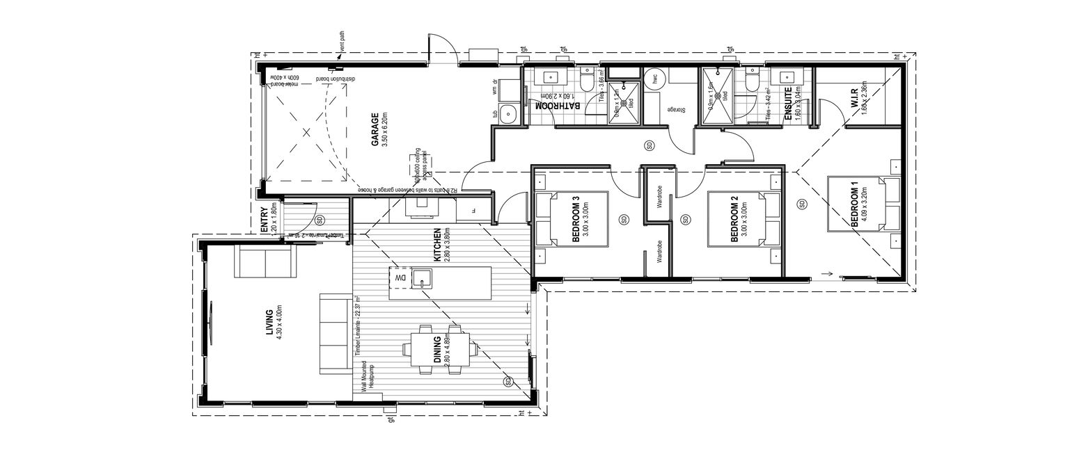
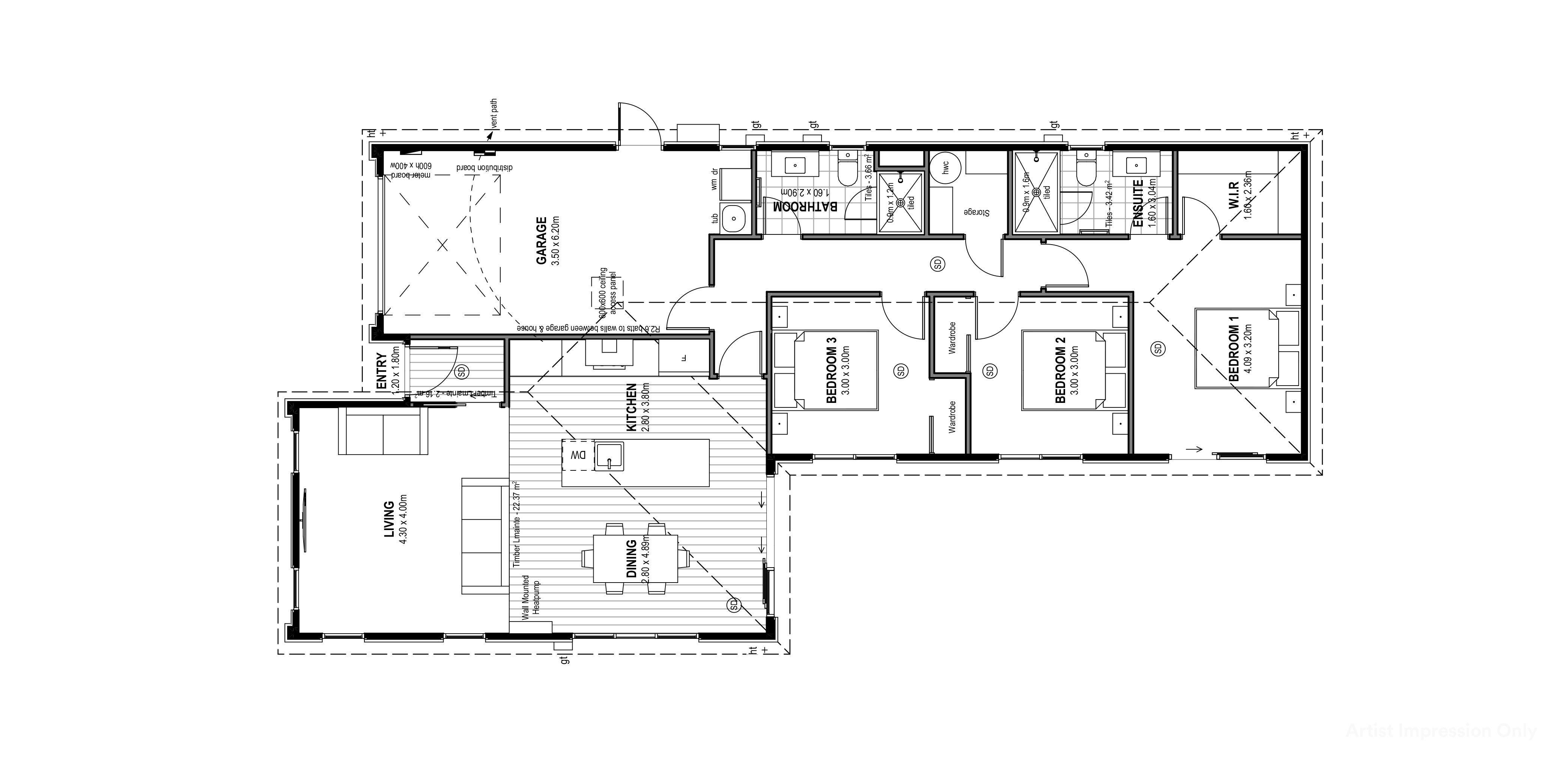
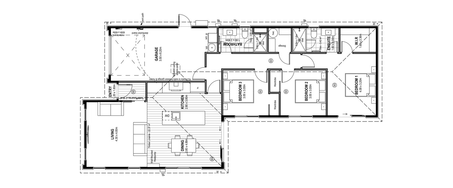
- Number of bedrooms:3
- Number of bathrooms:2
- Number of toilets:2
- Number of living spaces:1
- Garaging:1
- Landscaping:✓
- Floor size:141m²
Offering three double bedrooms and an open plan living, kitchen and dining area, this home is perfectly designed to maximise space and indoor/outdoor flow. The home features an internal access single garage and a fully landscaped private section perfect for entertaining. Complementing the living and bedroom spaces are the family bathroom and ensuite that are both well-appointed with quality fixtures and fittings.
Explore Floor Plans
Property Details
- Dwelling Size: 141m2
- Land Size: 300m2
Property Features
- Number of bedrooms:3
- Number of bathrooms:2
- Number of toilets:2
- Number of living spaces:1
- Garaging:1
- Landscaping:✓


Explore Floor Plans
Property Details
- Dwelling Size: 141m2
- Land Size: 300m2
Property Features
- Number of bedrooms:3
- Number of bathrooms:2
- Number of toilets:2
- Number of living spaces:1
- Garaging:1
- Landscaping:✓