Lot 115 Silverstream,
42 Penney Avenue
Turn Key
$779k

- Number of bedrooms:3
- Number of bathrooms:2
- Number of toilets:2
- Number of living spaces:1
- Garaging:1
- Landscaping:✓
- Floor size:145m²
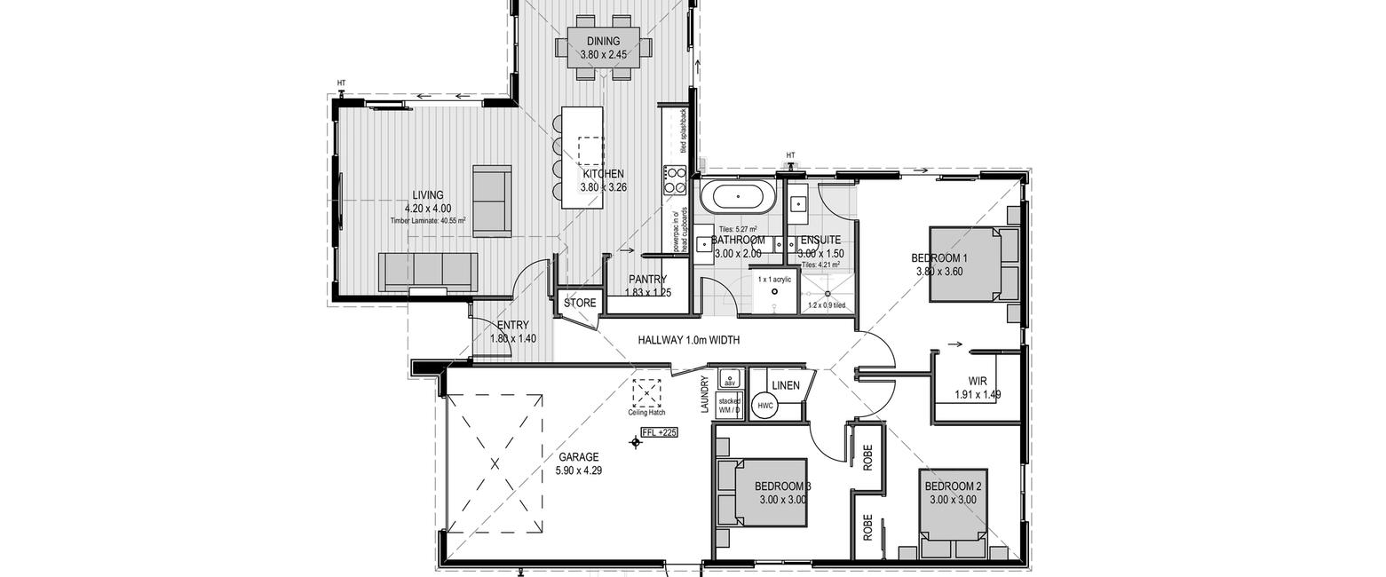
This stylish home combines a practical floor plan with attention to detail to maximise functionality and lifestyle. The three double bedrooms are complemented by a family bathroom and ensuite, as well as a spacious open plan kitchen, dining and living area. This well-appointed North facing living area opens out onto the landscaped section and outdoor entertaining area. An internal access single garage completes the package.
Explore Floor Plans
Property Details
- Dwelling Size: 145m2
- Land Size: 581m2
Property Features
- Number of bedrooms:3
- Number of bathrooms:2
- Number of toilets:2
- Number of living spaces:1
- Garaging:1
- Landscaping:✓


Explore Floor Plans
Property Details
- Dwelling Size: 145m2
- Land Size: 581m2
Property Features
- Number of bedrooms:3
- Number of bathrooms:2
- Number of toilets:2
- Number of living spaces:1
- Garaging:1
- Landscaping:✓