Lot 484 Beach Grove,
11 Naish Street
Home & Land Package
Under Construction
$649k

- Number of bedrooms:2
- Number of bathrooms:1
- Number of toilets:2
- Number of living spaces:1
- Garaging:1
- Landscaping:✓
- Floor size:123m2
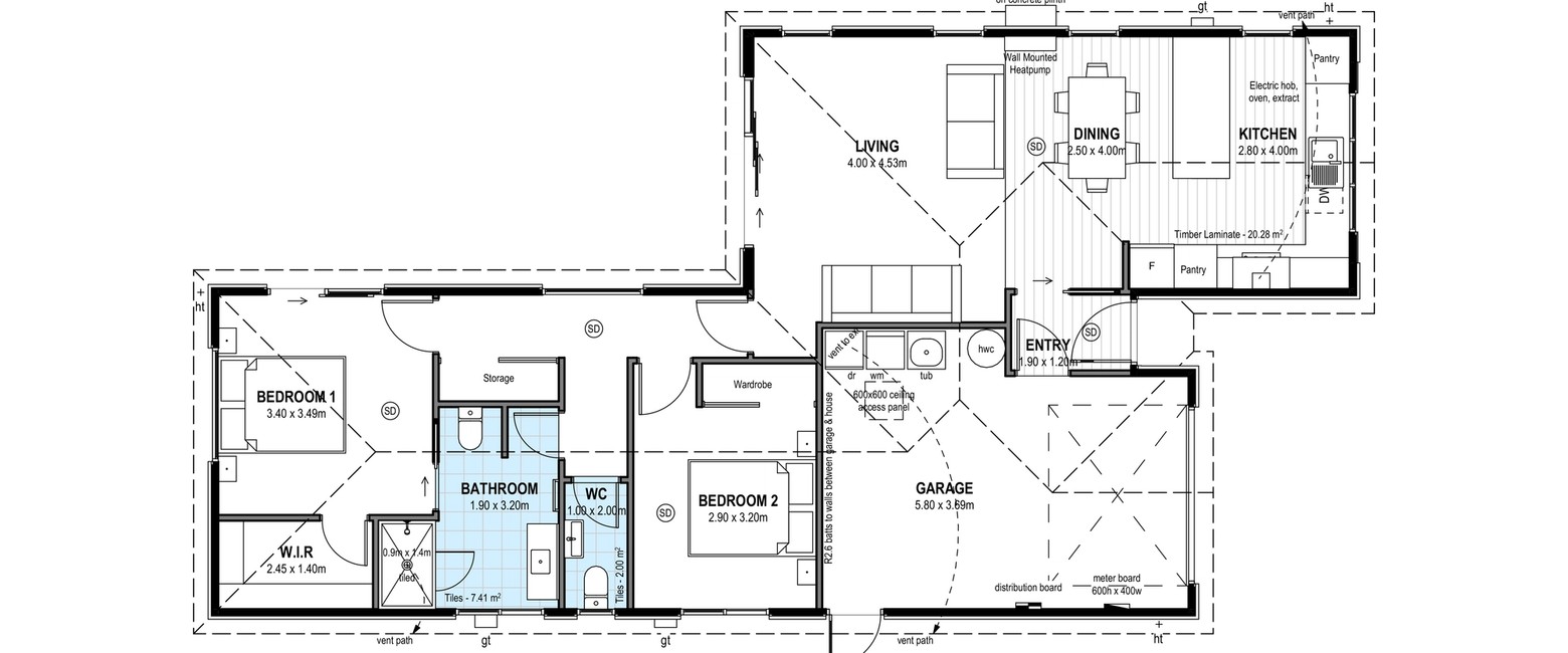
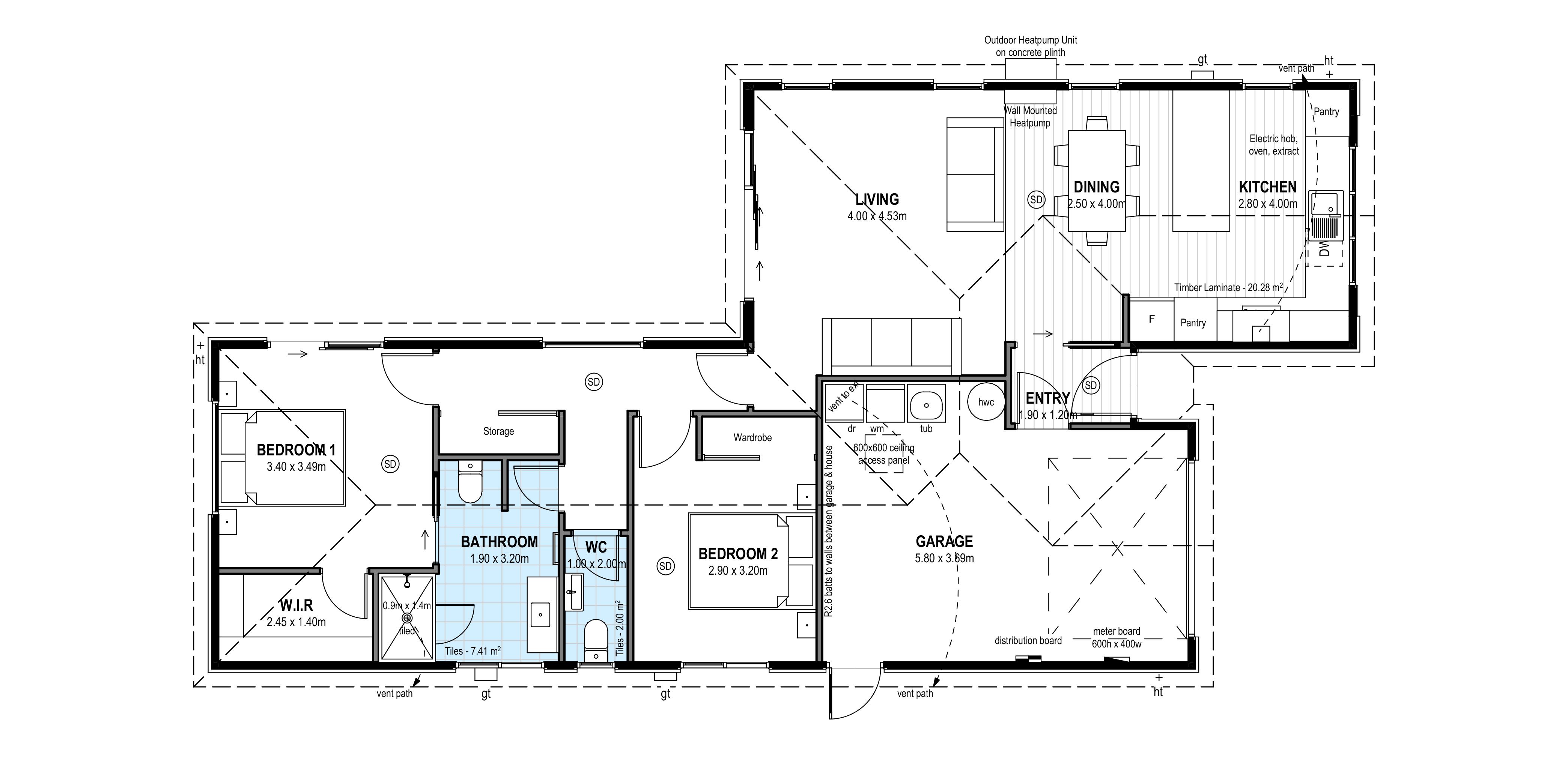
This attractive two double bedroom, one bathroom home has a spacious and practical floor plan that would suit a range of people and lifestyles. A North facing open plan living/dining/kitchen area offers easy access to the outdoor entertaining area within the fully landscaped section. The home also offers an internal access single garage and quality fixtures and fittings throughout, plus it benefits from a good location close to all amenities.
Explore Floor Plans
Property Details
- Dwelling Size: 123m2
- Land Size: 276m2
Property Features
- Number of bedrooms:2
- Number of bathrooms:1
- Number of toilets:2
- Number of living spaces:1
- Garaging:1
- Landscaping:✓


Explore Floor Plans
Property Details
- Dwelling Size: 123m2
- Land Size: 276m2
Property Features
- Number of bedrooms:2
- Number of bathrooms:1
- Number of toilets:2
- Number of living spaces:1
- Garaging:1
- Landscaping:✓