211,
27 William Bell Street
Turn Key
Under Construction
$865k

- Number of bedrooms:4
- Number of bathrooms:2
- Number of toilets:2
- Number of living spaces:1
- Garaging:2
- Landscaping:✓
- Floor size:181m2
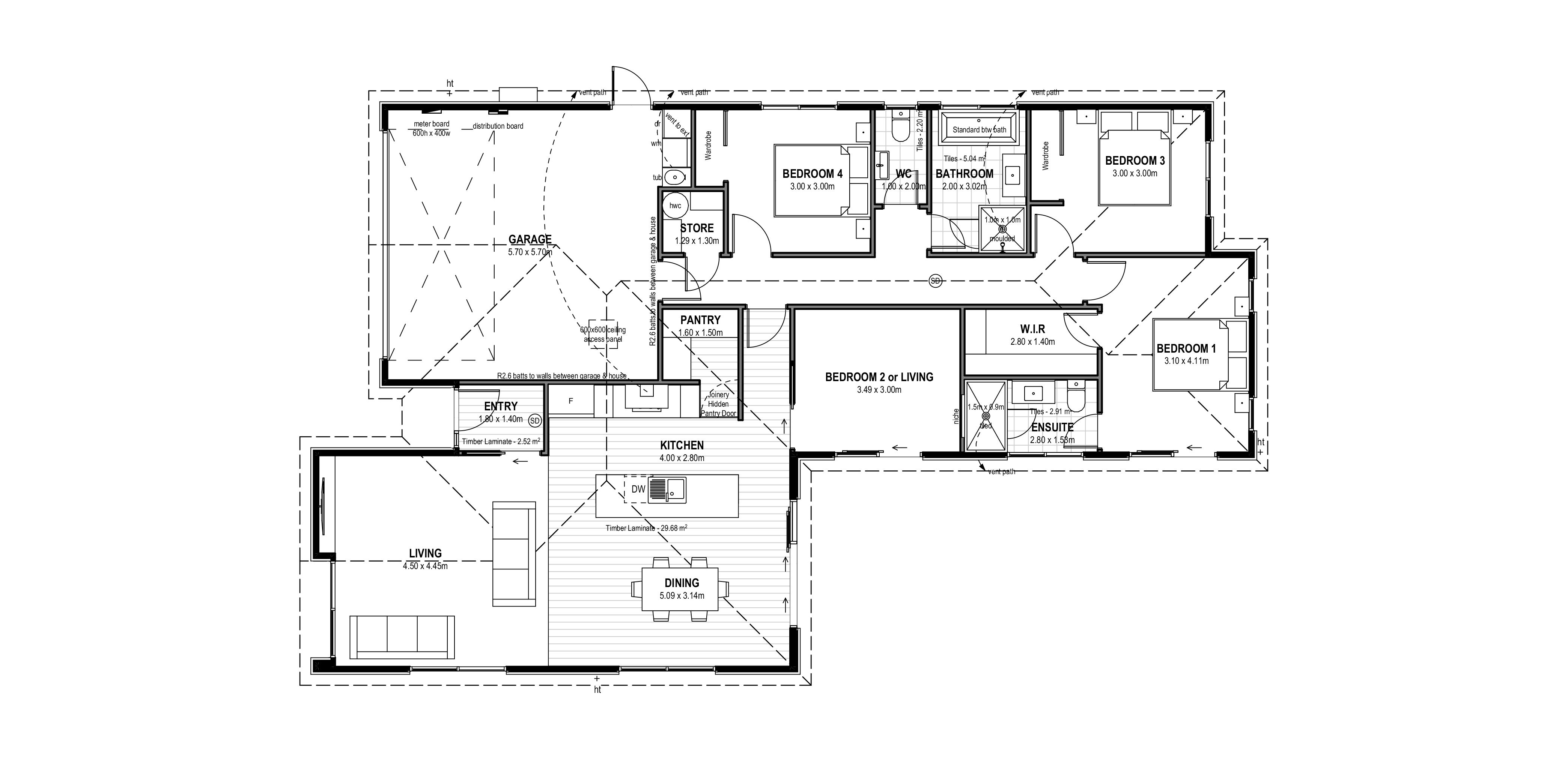
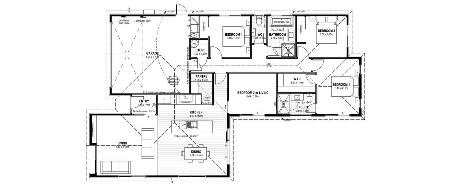
Set on a landscaped section, this home has been thoughtfully designed to maximise space and comfortable living. With four double bedrooms, a family bathroom, separate WC and an ensuite, the home is well appointed and suited to a range of lifestyles. The open plan living, kitchen and dining area creates a spacious central hub that integrates nicely with the outdoor entertaining area and the garden. Located in a popular area within close proximity to schools, shops and other amenities, this home presents great value for those looking for a new family home.
Explore Floor Plans
Property Details
- Dwelling Size: 181m2
- Land Size: 402m2
Property Features
- Number of bedrooms:4
- Number of bathrooms:2
- Number of toilets:2
- Number of living spaces:1
- Garaging:2
- Landscaping:✓


Explore Floor Plans
Property Details
- Dwelling Size: 181m2
- Land Size: 402m2
Property Features
- Number of bedrooms:4
- Number of bathrooms:2
- Number of toilets:2
- Number of living spaces:1
- Garaging:2
- Landscaping:✓