Lot 256 Bellgrove,
Stage 2
Turn Key
$619k

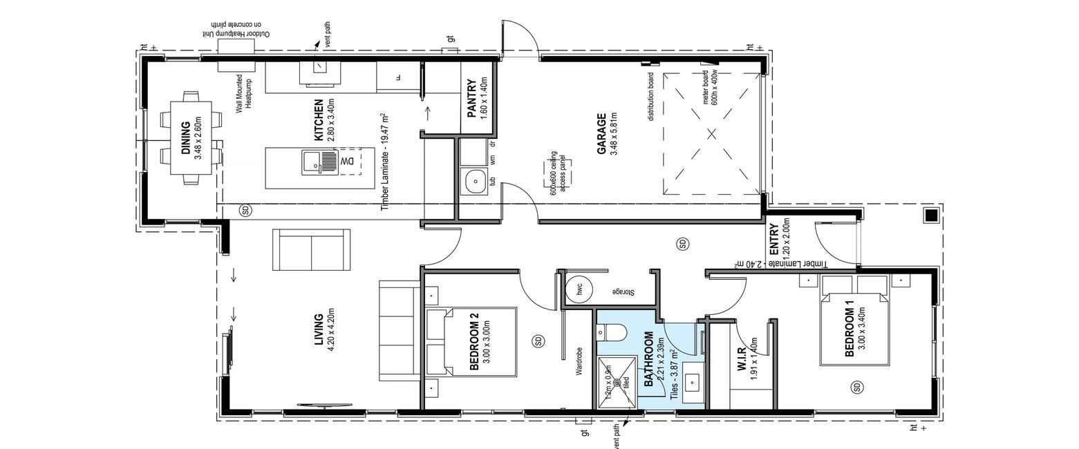
- Number of bedrooms:2
- Number of bathrooms:1
- Number of toilets:1
- Number of living spaces:1
- Garaging:1
- Landscaping:✓
- Floor size:117m²
Offering two double bedrooms and an open plan living, kitchen and dining area, this home is perfectly designed to maximise space and indoor/outdoor flow. The home features an internal access single garage and a landscaped private section perfect for entertaining. Complementing the living and bedroom spaces is the family bathroom which is well-appointed with quality fixtures and fittings.
Explore Floor Plans
Property Details
- Dwelling Size: 117m2
- Land Size: 238m2
Property Features
- Number of bedrooms:2
- Number of bathrooms:1
- Number of toilets:1
- Number of living spaces:1
- Garaging:1
- Landscaping:✓


Explore Floor Plans
Property Details
- Dwelling Size: 117m2
- Land Size: 238m2
Property Features
- Number of bedrooms:2
- Number of bathrooms:1
- Number of toilets:1
- Number of living spaces:1
- Garaging:1
- Landscaping:✓