Lot 355 Bellgrove,
Stage 2
Turn Key
$755k

- Number of bedrooms:2
- Number of bathrooms:1
- Number of toilets:2
- Number of living spaces:1
- Garaging:2
- Landscaping:✓
- Floor size:140m²
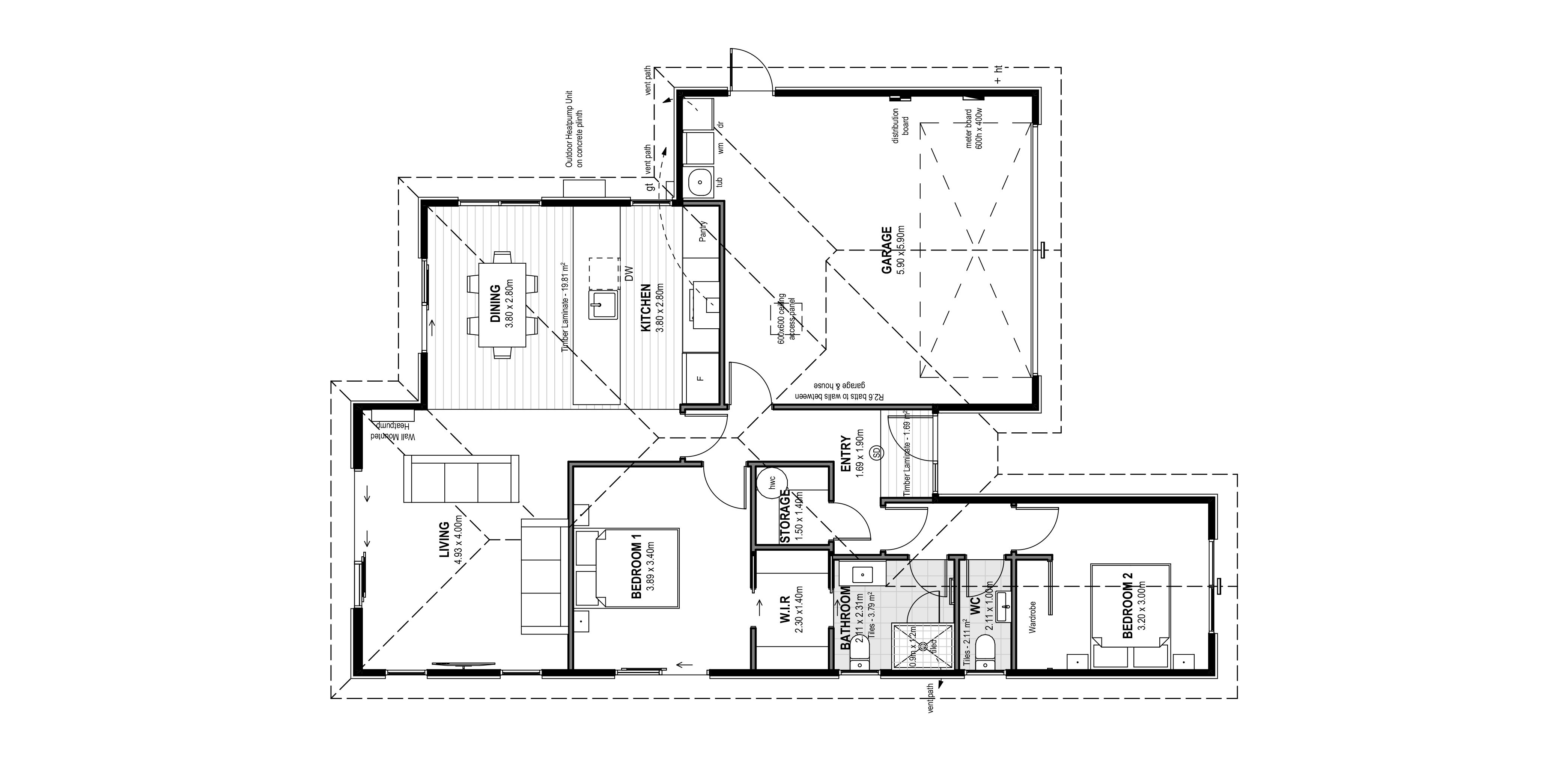
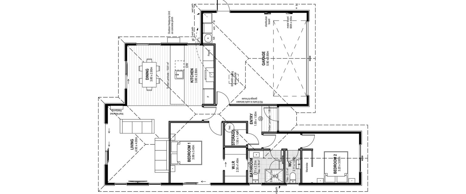
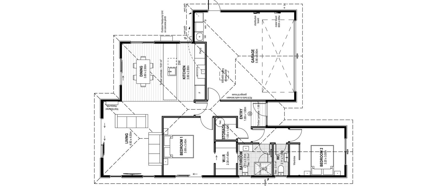
Offering two double bedrooms and an open plan living, kitchen and dining area, this home is perfectly designed to maximise space and indoor/outdoor flow. The home features an internal access double garage and a landscaped private section perfect for entertaining. Complementing the living and bedroom spaces are the family bathroom and separate WC that are both well-appointed with quality fixtures and fittings.
Explore Floor Plans
Property Details
- Dwelling Size: 140m2
- Land Size: 391m2
Property Features
- Number of bedrooms:2
- Number of bathrooms:1
- Number of toilets:2
- Number of living spaces:1
- Garaging:2
- Landscaping:✓


Explore Floor Plans
Property Details
- Dwelling Size: 140m2
- Land Size: 391m2
Property Features
- Number of bedrooms:2
- Number of bathrooms:1
- Number of toilets:2
- Number of living spaces:1
- Garaging:2
- Landscaping:✓