Lot 225,
24 Cunningham Street
Turn Key
Under Construction
$669k

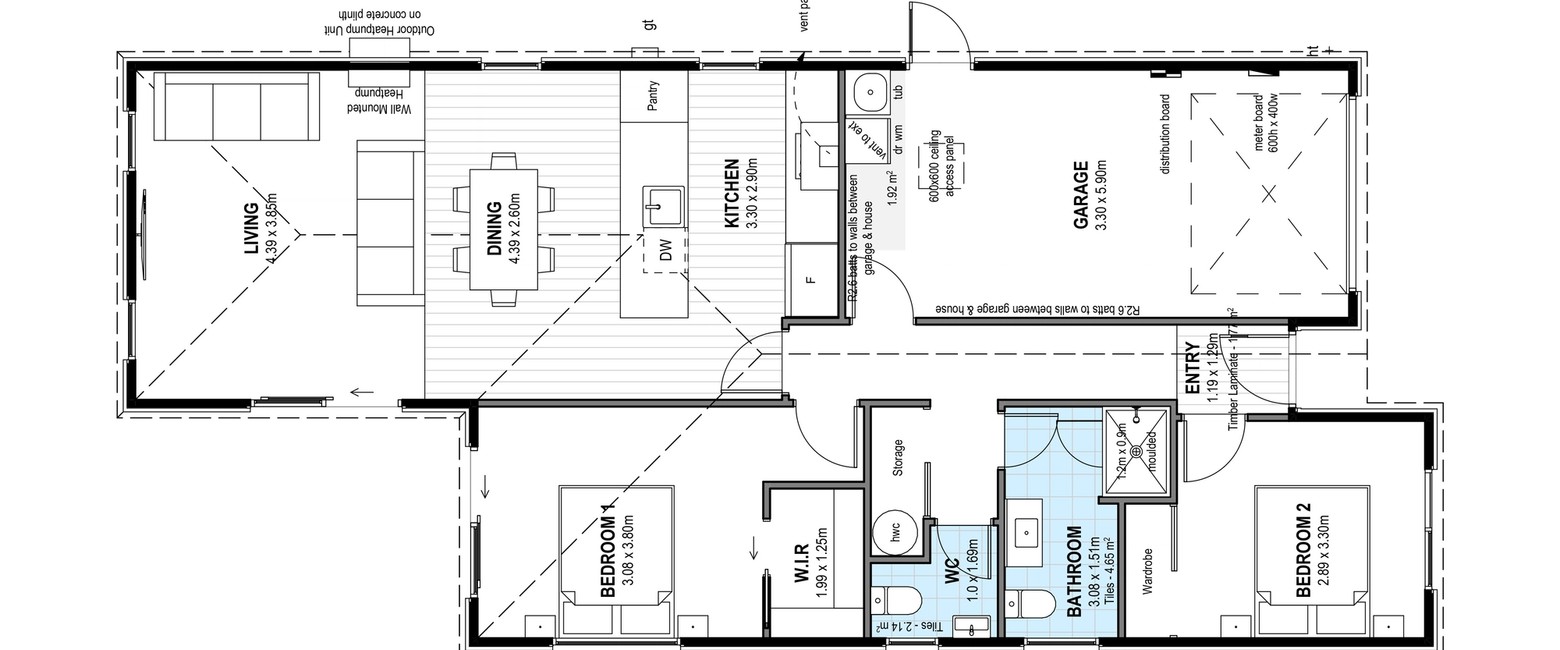
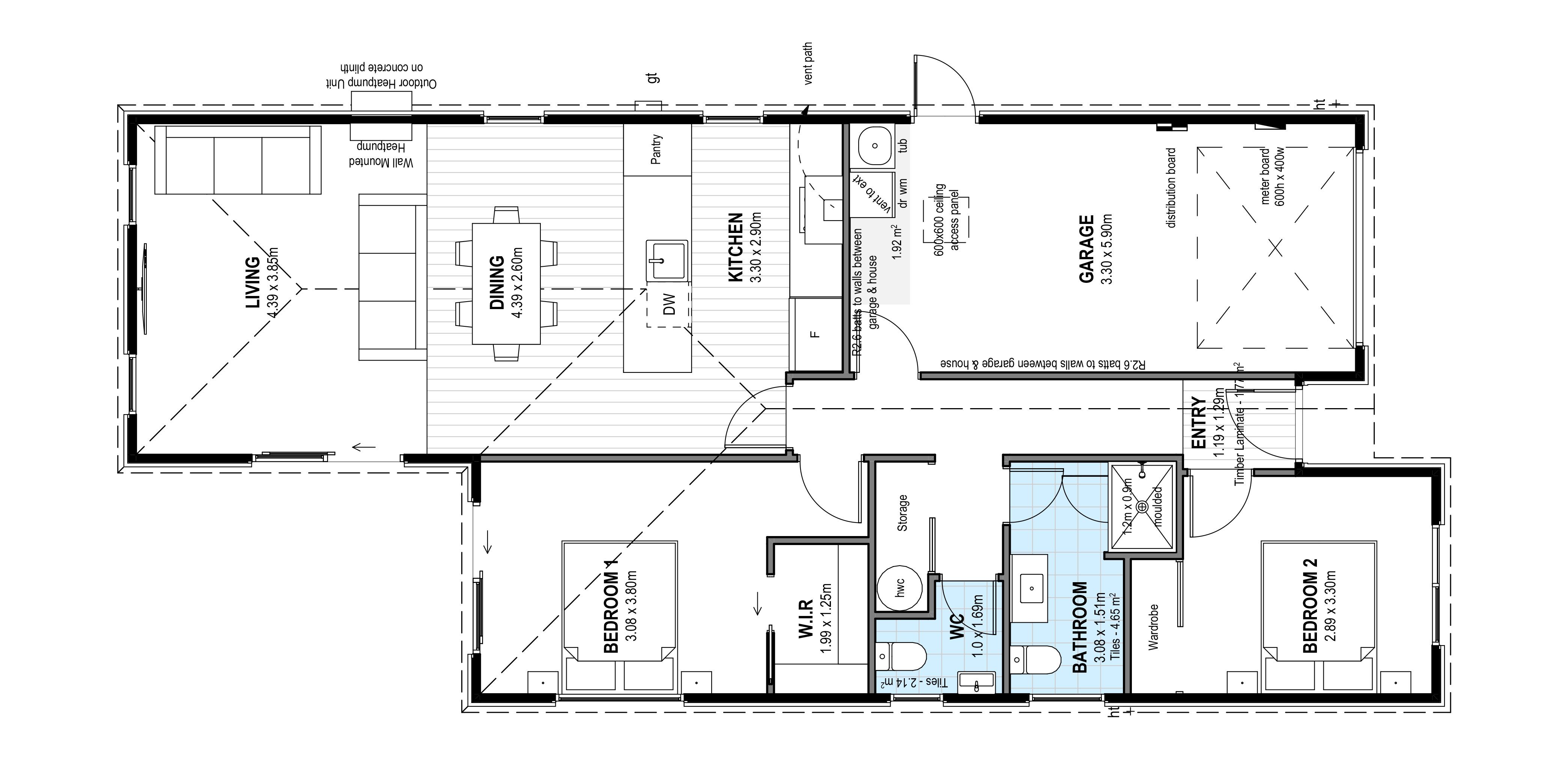
- Number of bedrooms:2
- Number of bathrooms:1
- Number of toilets:2
- Number of living spaces:1
- Garaging:1
- Landscaping:✓
- Floor size:117m2
This two double bedroom, single garage, landscaped home has been designed to maximise space and sun. The North facing open plan living, dining and kitchen area forms the centre of the home and offers great indoor/outdoor flow. The well-appointed family bathroom and seperate WC both feature quality fixtures and fittings that complement the spacious bedroom and living areas.
Explore Floor Plans
Property Details
- Dwelling Size: 117m2
- Land Size: 296m2
Property Features
- Number of bedrooms:2
- Number of bathrooms:1
- Number of toilets:2
- Number of living spaces:1
- Garaging:1
- Landscaping:✓


Explore Floor Plans
Property Details
- Dwelling Size: 117m2
- Land Size: 296m2
Property Features
- Number of bedrooms:2
- Number of bathrooms:1
- Number of toilets:2
- Number of living spaces:1
- Garaging:1
- Landscaping:✓