Lot 185 Falcon's Landing Raptor,
137 Ed Hillary Drive
Turn Key
$755k

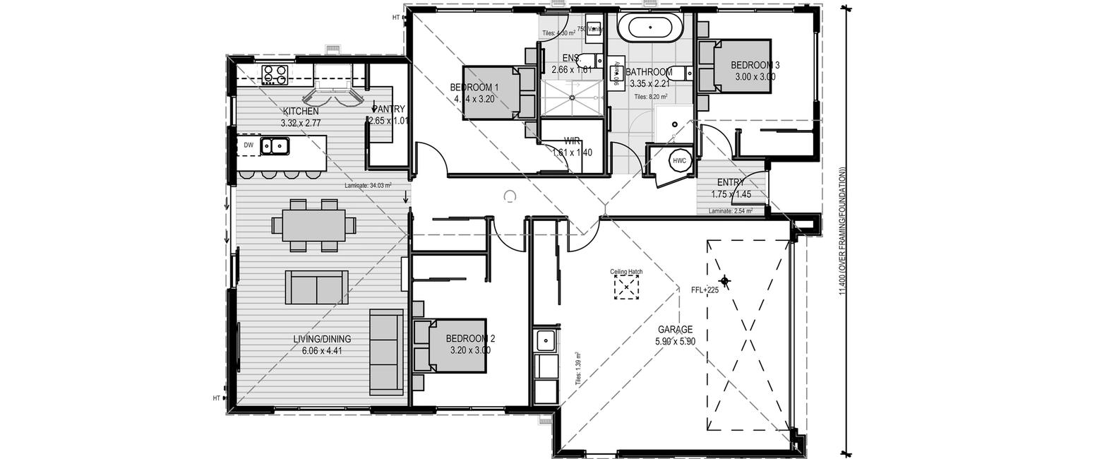
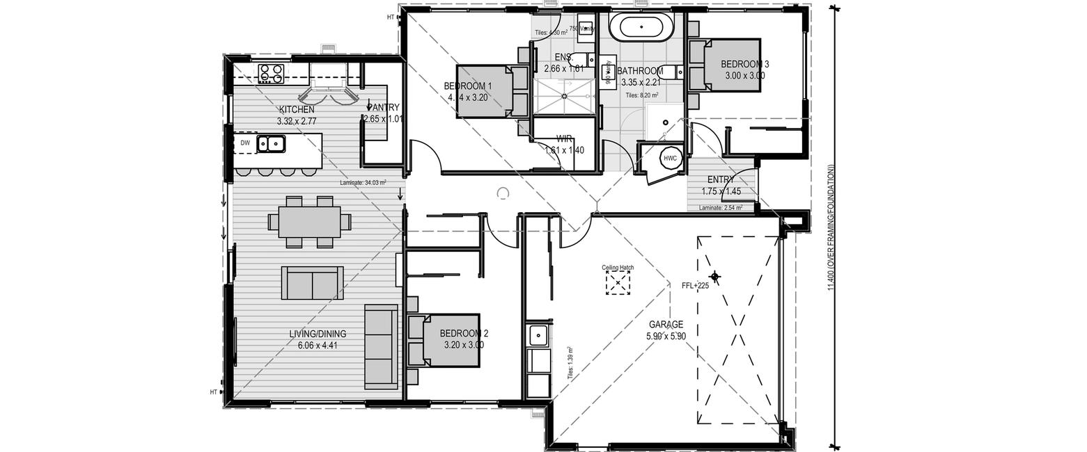
- Number of bedrooms:3
- Number of bathrooms:2
- Number of toilets:2
- Number of living spaces:1
- Garaging:2
- Landscaping:✓
- Floor size:150m²
Set on a fully landscaped section, this home has been thoughtfully designed to maximise space and sunlight. With three double bedrooms, a family bathroom, and an ensuite, the home is well appointed and suited to a range of lifestyles. The open-plan living, kitchen, and dining area creates a central hub that flows nicely with the north-facing outdoor living area and garden. Located in the popular Falcon's Landing, you will find yourself within close proximity to schools, shops, and other amenities.
Explore Floor Plans
Property Details
- Dwelling Size: 150m2
- Land Size: 433m2
Property Features
- Number of bedrooms:3
- Number of bathrooms:2
- Number of toilets:2
- Number of living spaces:1
- Garaging:2
- Landscaping:✓


Explore Floor Plans
Property Details
- Dwelling Size: 150m2
- Land Size: 433m2
Property Features
- Number of bedrooms:3
- Number of bathrooms:2
- Number of toilets:2
- Number of living spaces:1
- Garaging:2
- Landscaping:✓