Lot 42 Wood Grove Stage 1b,
9 Petrel Street
Turn Key
$735k

- Number of bedrooms:3
- Number of bathrooms:2
- Number of toilets:2
- Number of living spaces:1
- Garaging:2
- Landscaping:✓
- Floor size:145m²
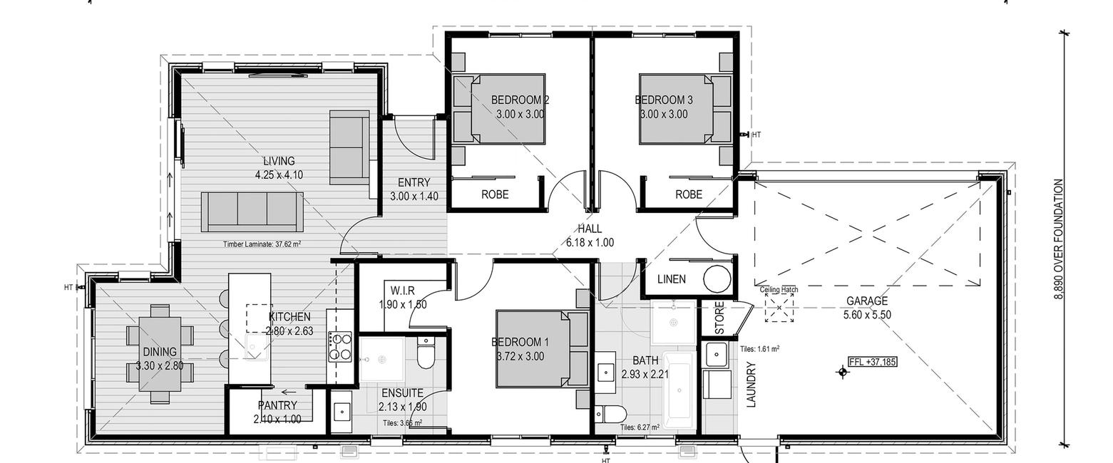
This attractive three double bedroom, two bathroom home has a spacious and practical floor plan that would suit a range of people and lifestyles. A North facing open plan living/dining/kitchen area offers easy access to the outdoor entertaining area within the fully landscaped section. The home also offers an internal access double garage and quality fixtures and fittings throughout, plus it benefits from a good location close to all amenities.
Explore Floor Plans
Property Details
- Dwelling Size: 145m2
- Land Size: 334m2
Property Features
- Number of bedrooms:3
- Number of bathrooms:2
- Number of toilets:2
- Number of living spaces:1
- Garaging:2
- Landscaping:✓


Explore Floor Plans
Property Details
- Dwelling Size: 145m2
- Land Size: 334m2
Property Features
- Number of bedrooms:3
- Number of bathrooms:2
- Number of toilets:2
- Number of living spaces:1
- Garaging:2
- Landscaping:✓