Lot 720 Wood Grove Stage 1b,
42 Baratheon Road
Turn Key
$789k

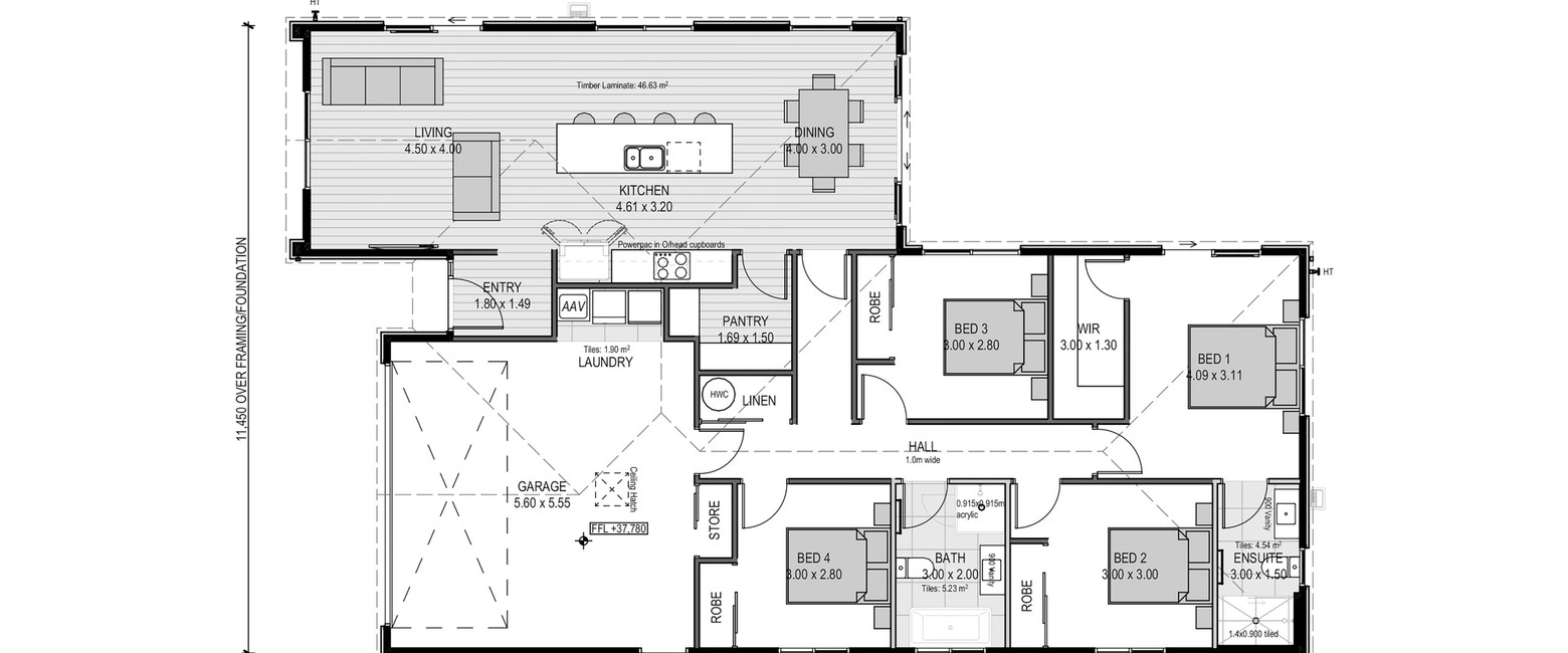
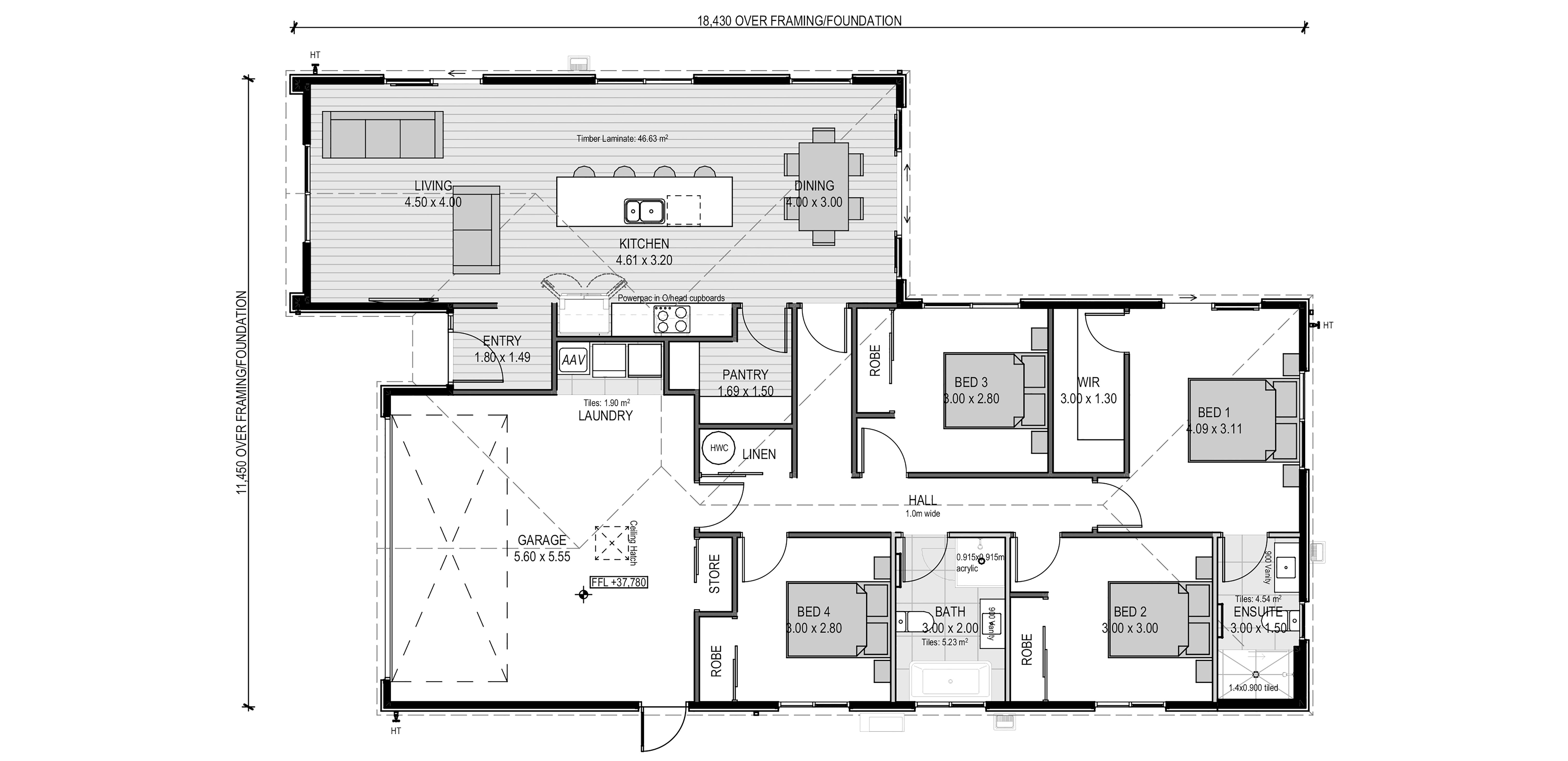
- Number of bedrooms:4
- Number of bathrooms:2
- Number of toilets:2
- Number of living spaces:1
- Garaging:2
- Landscaping:✓
- Floor size:166m²
Set on a fully landscaped section, this home features four double bedrooms, a family bathroom, an ensuite and an open plan design. The living, kitchen and dining space offers a versatile area well suited to families and for entertaining. This home is well appointed throughout and is ideally situated close to a selection of schools and amenities.
Explore Floor Plans
Property Details
- Dwelling Size: 166m2
- Land Size: 515m2
Property Features
- Number of bedrooms:4
- Number of bathrooms:2
- Number of toilets:2
- Number of living spaces:1
- Garaging:2
- Landscaping:✓


Explore Floor Plans
Property Details
- Dwelling Size: 166m2
- Land Size: 515m2
Property Features
- Number of bedrooms:4
- Number of bathrooms:2
- Number of toilets:2
- Number of living spaces:1
- Garaging:2
- Landscaping:✓