Lot 156 Falcon's Landing Raptor,
14 Sight Close
Turn Key
$765k

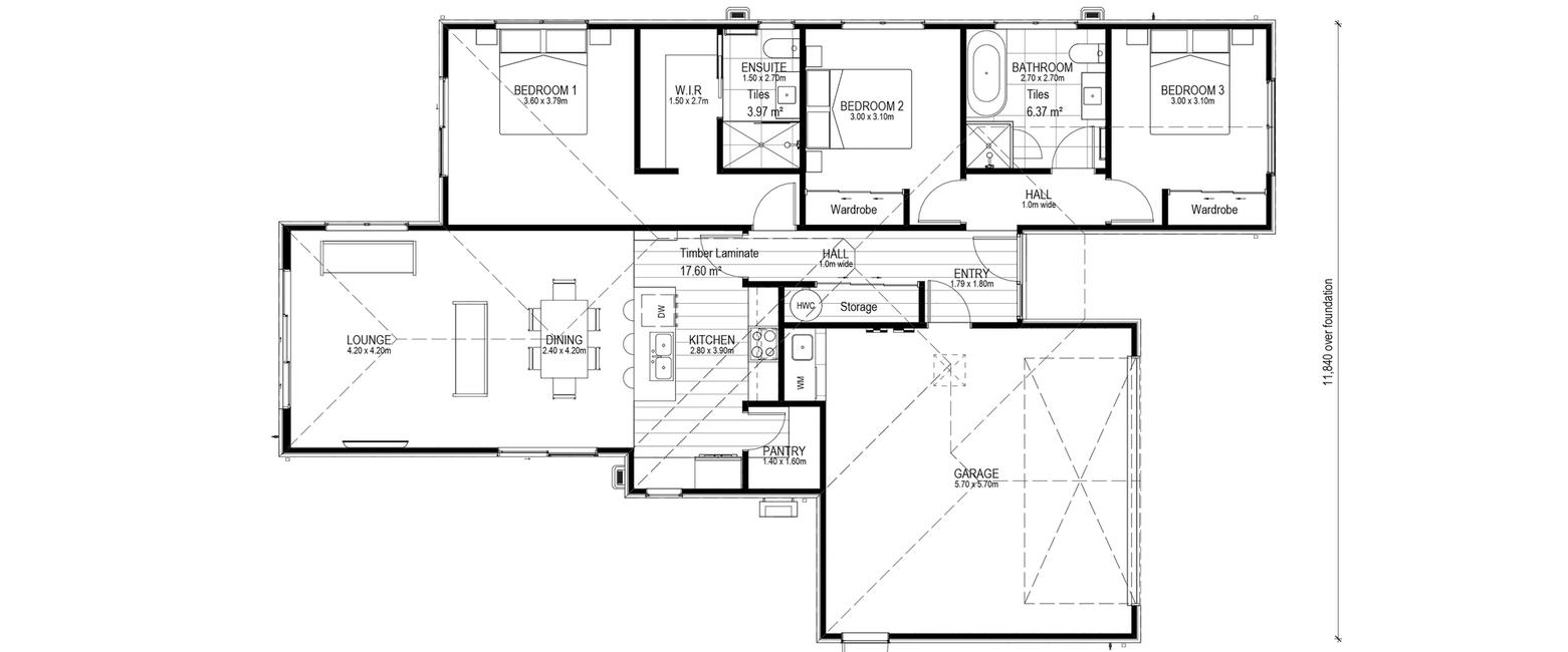
- Number of bedrooms:3
- Number of bathrooms:2
- Number of toilets:2
- Number of living spaces:1
- Garaging:2
- Landscaping:✓
- Floor size:155m²
Forming a central hub in the home, you’ll find the living, dining, and kitchen space, which opens out onto a large patio and beautifully landscaped section.
Separate from the other bedrooms, you will find the master bedroom, which has an ensuite, walk-in wardrobe, and access to a private patio via a sliding door, creating a private retreat. With high-quality furnishings throughout, this home combines style with the comfort of a new home.
Explore Floor Plans
Property Details
- Dwelling Size: 155m2
- Land Size: 414m2
Property Features
- Number of bedrooms:3
- Number of bathrooms:2
- Number of toilets:2
- Number of living spaces:1
- Garaging:2
- Landscaping:✓


Explore Floor Plans
Property Details
- Dwelling Size: 155m2
- Land Size: 414m2
Property Features
- Number of bedrooms:3
- Number of bathrooms:2
- Number of toilets:2
- Number of living spaces:1
- Garaging:2
- Landscaping:✓