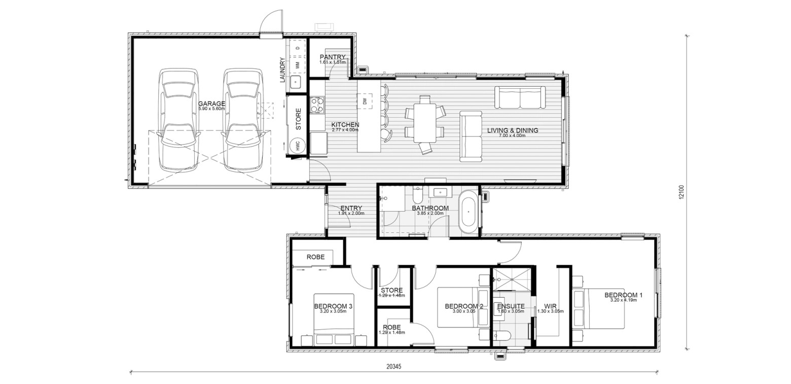
Lot 156 Falcon's Landing Raptor - 14 Sight Close | Mike Greer Homes