Lot 31 Stage 3,
23 Herenga Way
Turn Key
$759k

- Number of bedrooms:2
- Number of bathrooms:1
- Number of toilets:1
- Number of living spaces:1
- Garaging:1
- Floor size:70m²
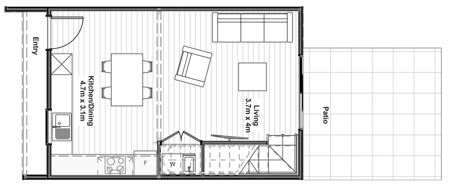
This two storey home has an off-street carpark, two double bedrooms, a bathroom, separate toilet, separate laundry and a spacious open plan kitchen, dining and living area that opens out on to an entertaining area. Finished with quality fixtures and fittings and a landscaped section, this home offers great value and an easy lifestyle.
Explore Floor Plans
Property Details
- Dwelling Size: 70m2
- Land Size: 100m2
Property Features
- Number of bedrooms:2
- Number of bathrooms:1
- Number of toilets:1
- Number of living spaces:1
- Garaging:1


Explore Floor Plans
Property Details
- Dwelling Size: 70m2
- Land Size: 100m2
Property Features
- Number of bedrooms:2
- Number of bathrooms:1
- Number of toilets:1
- Number of living spaces:1
- Garaging:1