Lot 37, Stage 3,
5 Herenga Way
Turn Key
$900k

- Number of bedrooms:3
- Number of bathrooms:1
- Number of toilets:2
- Number of living spaces:1
- Garaging:1
- Floor size:94m2
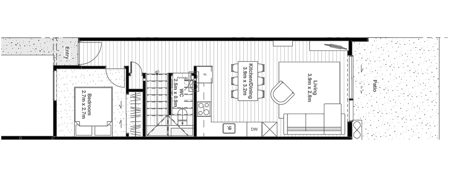
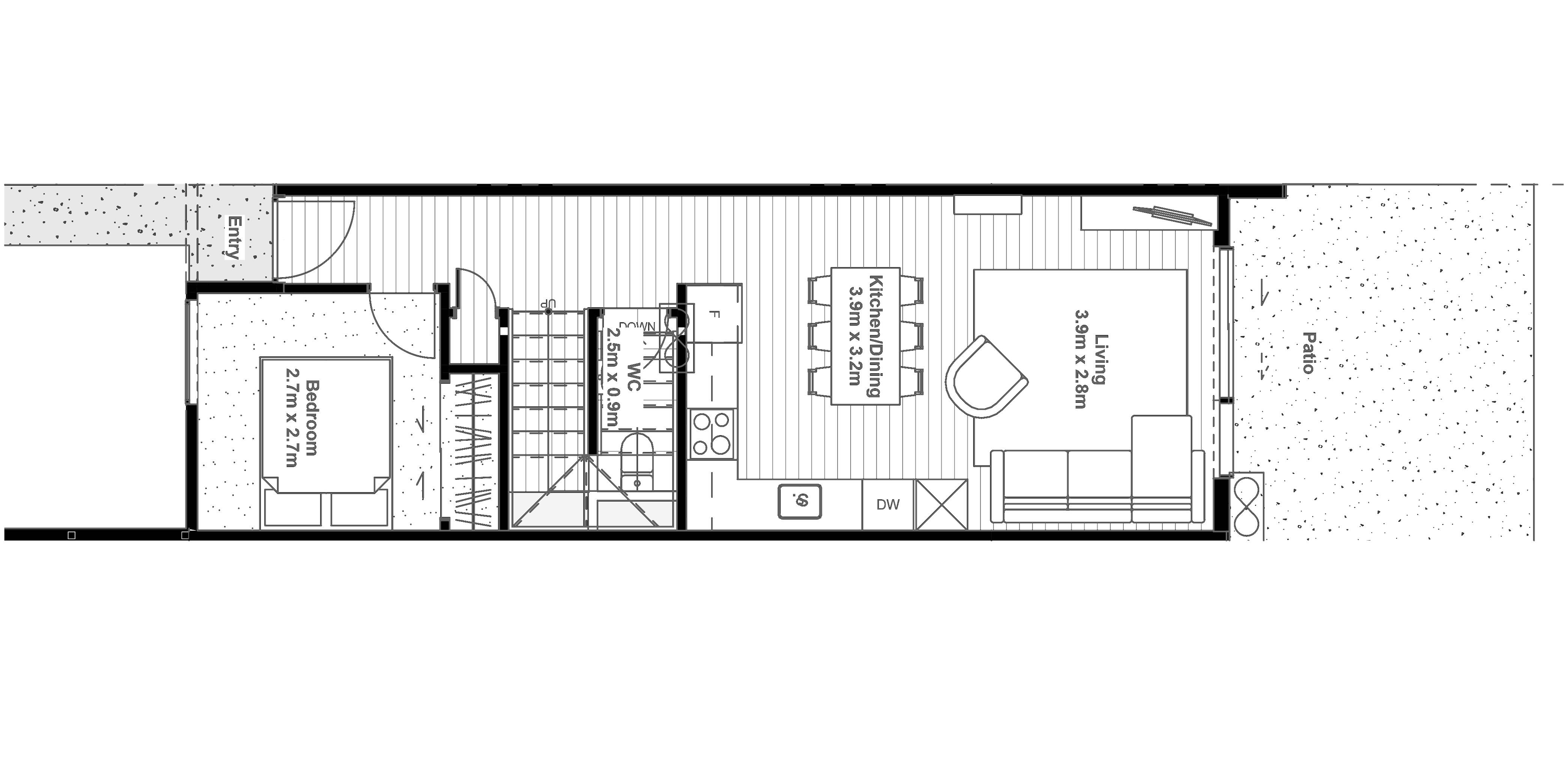
This two storey home has an off-street carpark, three double bedrooms, one bathrooms, seperate toilet, separate laundry, generous study nook and a spacious open plan kitchen, dining and living area that opens out on to an entertaining area. Finished with quality fixtures and fittings and a landscaped section, this home offers great value and an easy lifestyle.
Explore Floor Plans
Property Details
- Dwelling Size: 94m2
- Land Size: 98m2
Property Features
- Number of bedrooms:3
- Number of bathrooms:1
- Number of toilets:2
- Number of living spaces:1
- Garaging:1


Explore Floor Plans
Property Details
- Dwelling Size: 94m2
- Land Size: 98m2
Property Features
- Number of bedrooms:3
- Number of bathrooms:1
- Number of toilets:2
- Number of living spaces:1
- Garaging:1