$610k

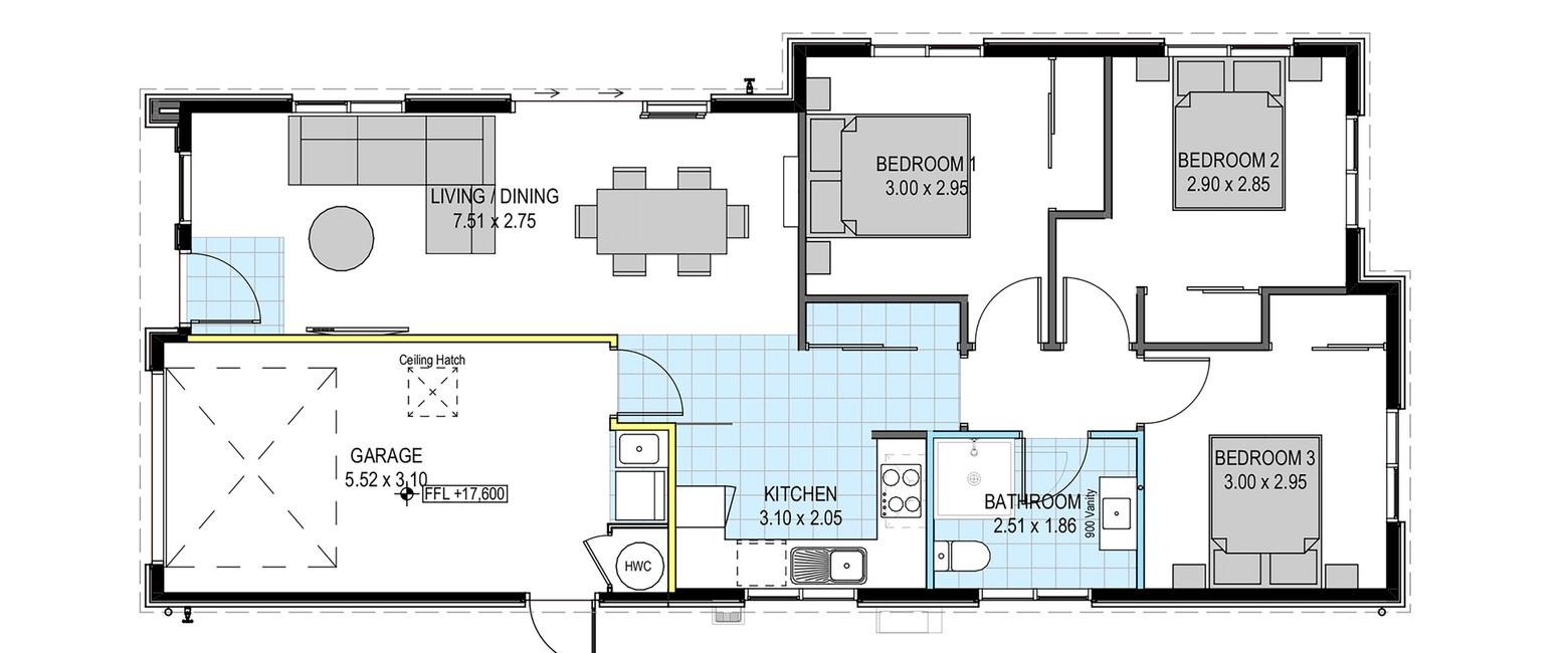
Set on a landscaped section with an internal access single garage, this home features three double bedrooms, a family bathroom and an open plan dining and living area that opens out onto an outdoor entertaining area. This home is well appointed throughout, offering great value and an easy lifestyle.

