Lot 14 Ashley Drive,
Paroa Estate
Turn Key
$789k

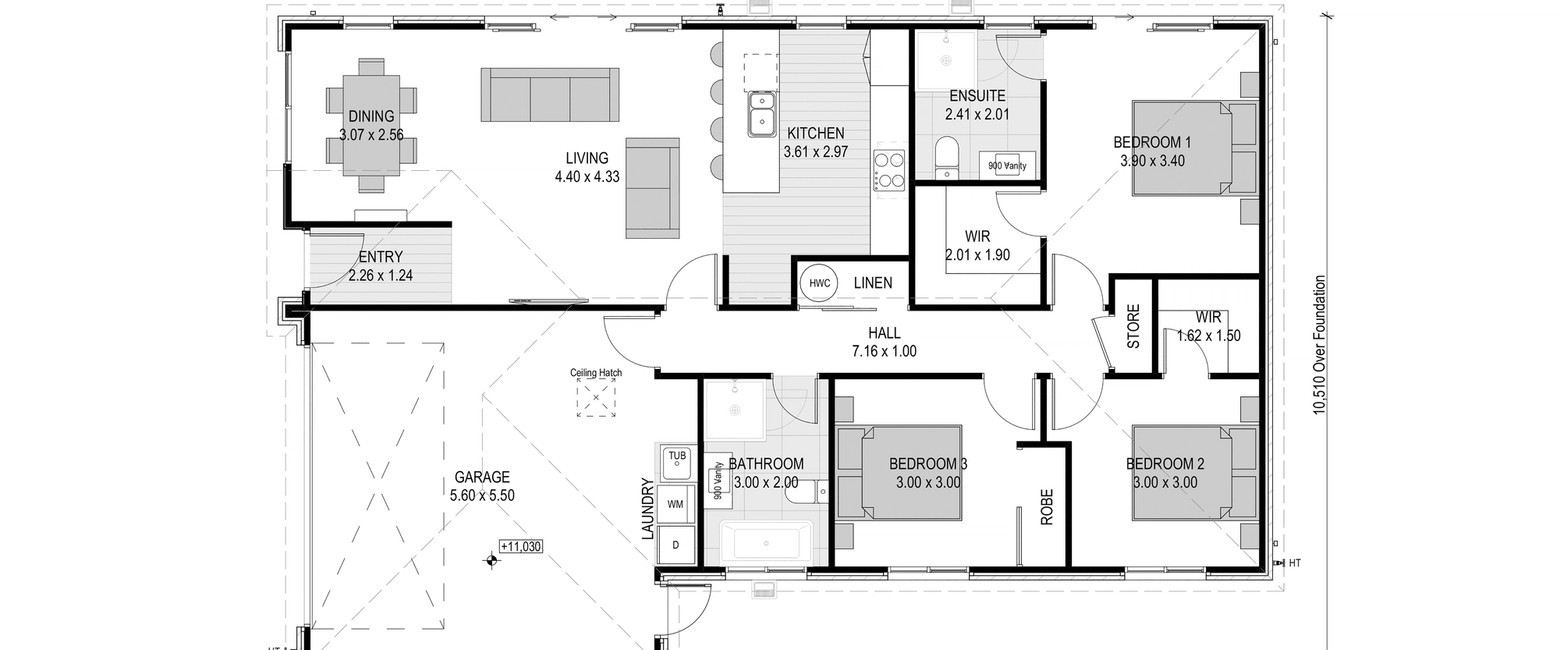
- Number of bedrooms:3
- Number of bathrooms:2
- Number of toilets:2
- Number of living spaces:1
- Garaging:2
- Landscaping:✓
- Floor size:149m²
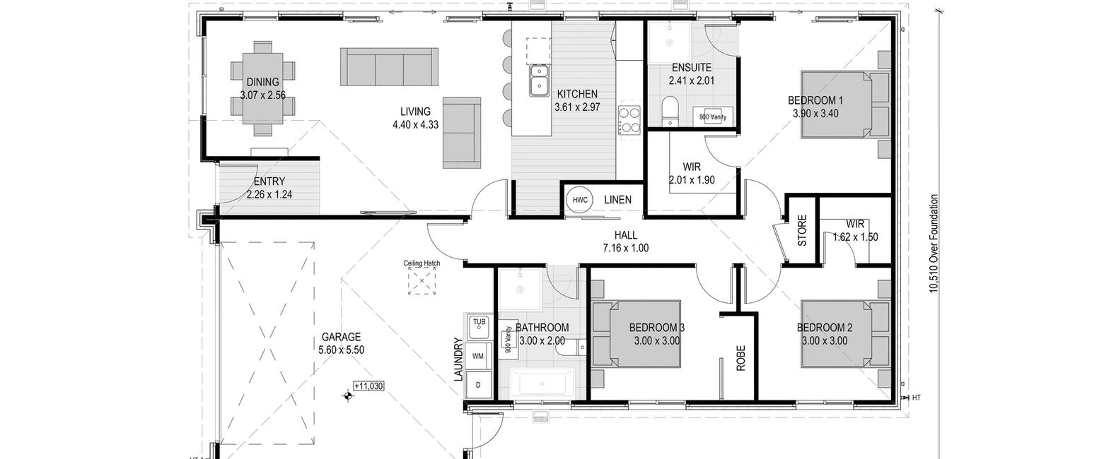
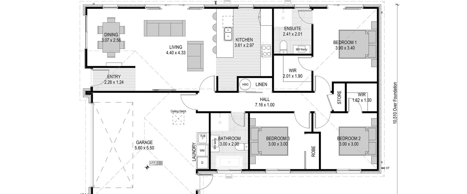
This three bedroom, two bathroom home features a generous and functional layout, ideal for a variety of lifestyles. The North-facing open plan living, dining, and kitchen area connects directly to the outdoor entertaining space. The home offers a double garage with internal access and high-quality fixtures and fittings throughout.
Download Info Pack
Share this Property
Explore Floor Plans
Property Details
- Dwelling Size: 149m2
- Land Size: 699m2
Property Features
- Number of bedrooms:3
- Number of bathrooms:2
- Number of toilets:2
- Number of living spaces:1
- Garaging:2
- Landscaping:✓


Explore Floor Plans
Property Details
- Dwelling Size: 149m2
- Land Size: 699m2
Property Features
- Number of bedrooms:3
- Number of bathrooms:2
- Number of toilets:2
- Number of living spaces:1
- Garaging:2
- Landscaping:✓