Buy a home and get a $10k holiday!
Learn MoreLot 68 Spring Grove

Lot 68 Spring Grove
879k
Lot 68 Spring Grove
879k
83 Bill Hammond Drive
Lot 68, 83 Bill Hammond Drive, Belfast, Christchurch City, Canterbury
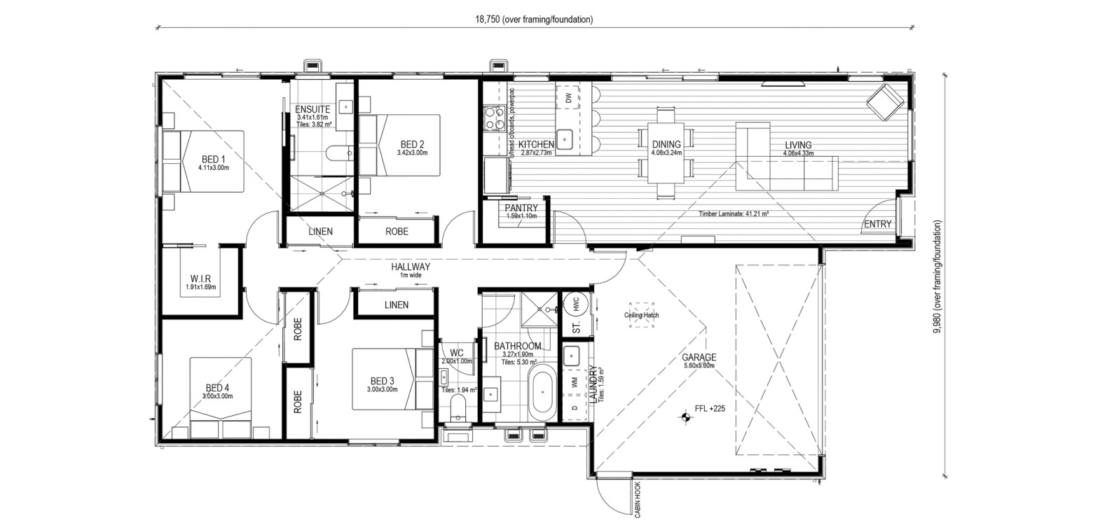
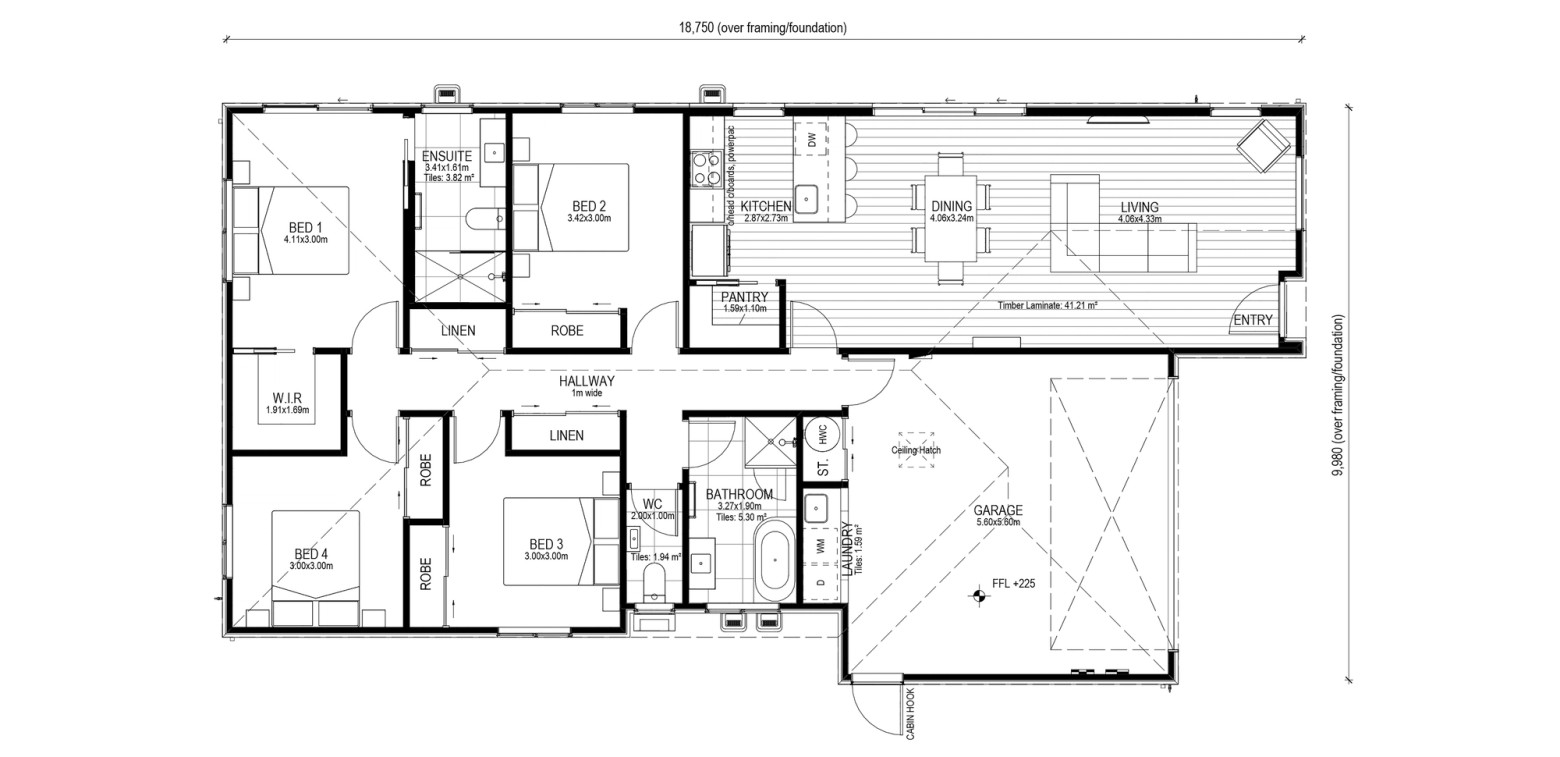
This bright and airy four double bedroom home has a great open plan layout that flows nicely between the kitchen, dining, and living areas.
The North-facing, low-maintenance backyard is fully landscaped perfect for chilling out or hosting friends. With a separate family bathroom plus an ensuite for extra convenience. This home is finished with quality fittings throughout, and it comes with an internal access double garage. Driveways and fencing are all included in the price. Ready to make it yours!

Enquire
Lot 68, 83 Bill Hammond Drive, Belfast, Christchurch City, Canterbury
If you have any additional questions, please get in touch with our Sales team who will be more than happy to assist you.
If you have any additional questions, please get in touch with our Sales team who will be more than happy to assist you.
