Buy a home and get a $10k holiday!
Learn MoreLot 463

Lot 463
669k
Lot 463
669k
11 Croucher Street
Lot 463, 11, Kaiapoi, North Canterbury, Canterbury
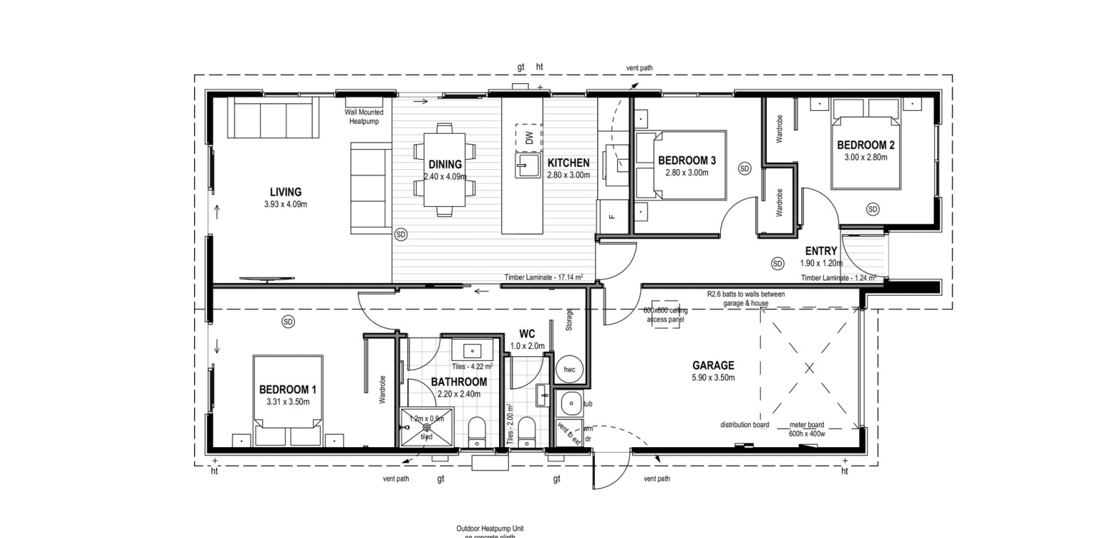
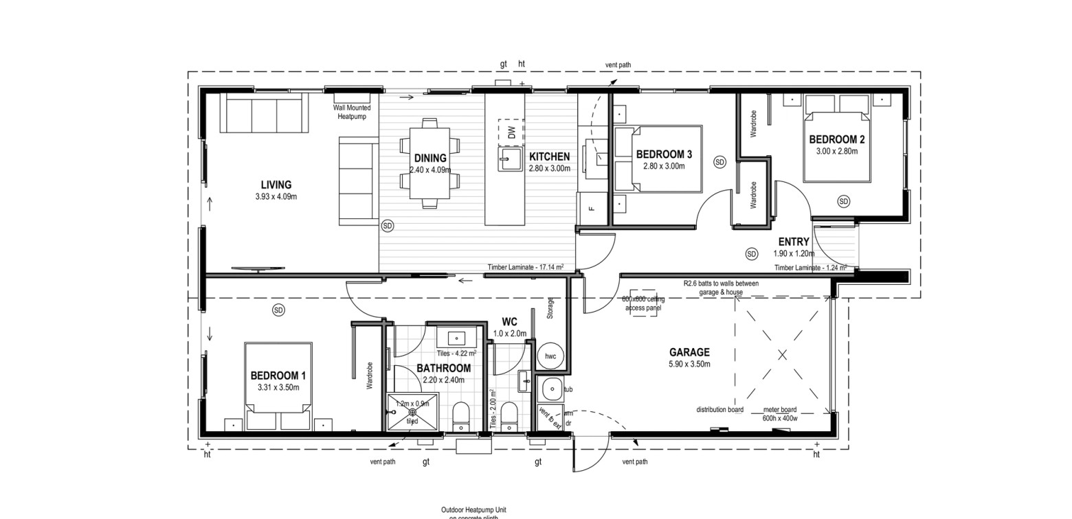
This attractive three double bedroom, one family bathroom and separate WC home has a spacious and practical floor plan that would suit a range of people and lifestyles.
A North facing open plan living/dining/kitchen area offers easy access to the outdoor entertaining area within the landscaped section. The home also offers an internal access single garage and quality fixtures and fittings throughout, plus it benefits from a good location close to all amenities.

Enquire
Lot 463, 11, Kaiapoi, North Canterbury, Canterbury
If you have any additional questions, please get in touch with our Sales team who will be more than happy to assist you.
If you have any additional questions, please get in touch with our Sales team who will be more than happy to assist you.
