Buy a home and get a $10k holiday!
Learn MoreLot 101 Wood Grove Stage 1b

Lot 101 Wood Grove Stage 1b
747k
Lot 101 Wood Grove Stage 1b
747k
3 Petrel Street
Lot 101, 3 Petrel Street, Rolleston, Selwyn, Canterbury
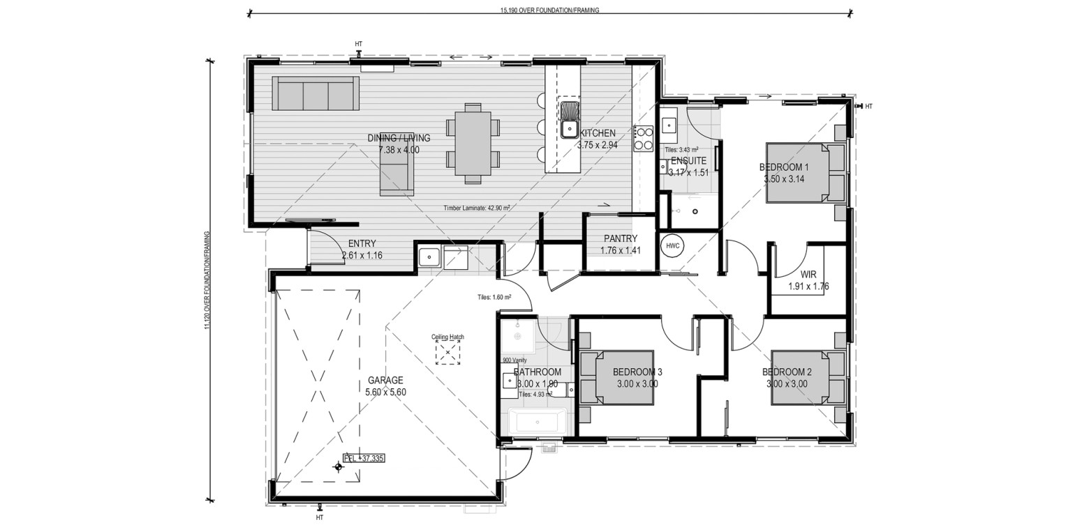
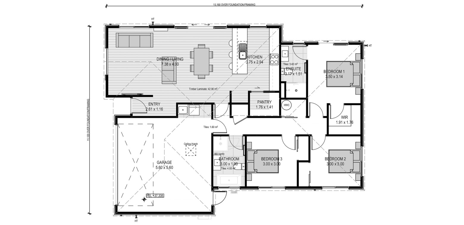
Set on a fully landscaped section, this home has been thoughtfully designed to maximise space and comfortable living.
With three double bedrooms, a family bathroom and an ensuite, the home is well appointed and suited to a range of lifestyles. The open plan living, kitchen and dining area creates a spacious central hub that integrates nicely with the outdoor entertaining area and the garden. Located in a popular area within close proximity to schools, shops and other amenities, this home presents great value for those looking for a new family home.

Enquire
Lot 101, 3 Petrel Street, Rolleston, Selwyn, Canterbury
If you have any additional questions, please get in touch with our Sales team who will be more than happy to assist you.
If you have any additional questions, please get in touch with our Sales team who will be more than happy to assist you.
