5 Blossom Walk
Townhouse 63 Madras Square

5 Blossom Walk
Townhouse 63 Madras Square
659k
- 2
- 2
- 2
- 1
- 84m2
5 Blossom Walk
Townhouse 63 Madras Square
$
659k
5 Blossom Walk
Townhouse 63, 5 Blossom Walk, Christchurch Central, Christchurch City, Canterbury
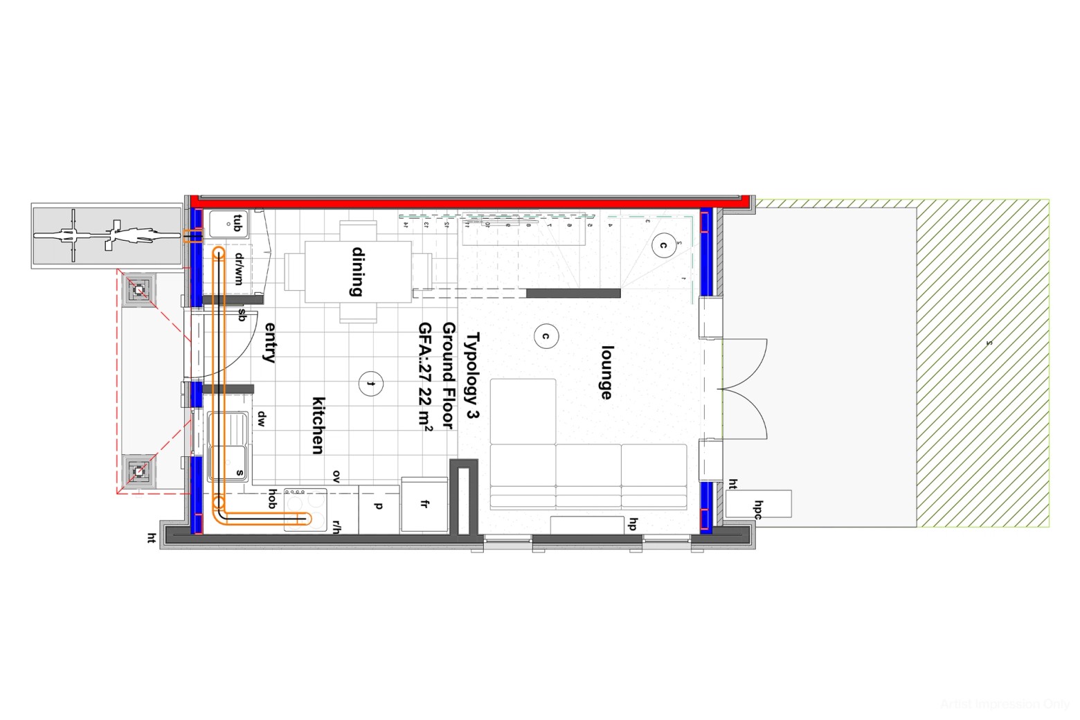
This three storey home features an open plan kitchen, dining and living, separate laundry, two generous bedrooms with great storage and two fully tiled bathrooms complete with your own private outdoor area.
Features
- Alarm
- Digital Key Entry
- Ensuite
- 10 Year Master Build Guarantee
- Samsung Appliances
- Undertile Heating in Bathroom and Ensuite
- Window Coverings Included

Enquire
Interested in this home?
Christchurch Team
Location and nearby Showhomes
Townhouse 63, 5 Blossom Walk, Christchurch Central, Christchurch City, Canterbury
FAQ's
Still have a question?
If you have any additional questions, please get in touch with our Sales team who will be more than happy to assist you.
Still have a question?
If you have any additional questions, please get in touch with our Sales team who will be more than happy to assist you.
