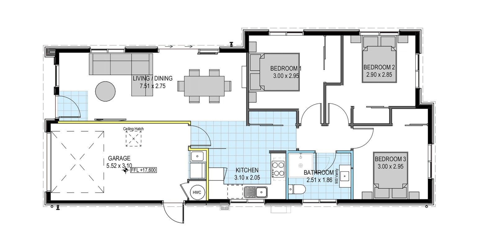
Lot 100, 22 Pourewa St, Lakeside, Waikato District | Mike Greer Homes