Buy a home and get a $10k holiday!
Learn MoreLot 6 Paparoa Views

Lot 6 Paparoa Views
735k
Lot 6 Paparoa Views
735k
Lot 6 Paparoa Views
Lot 6 Paparoa Views, Kaiata Park
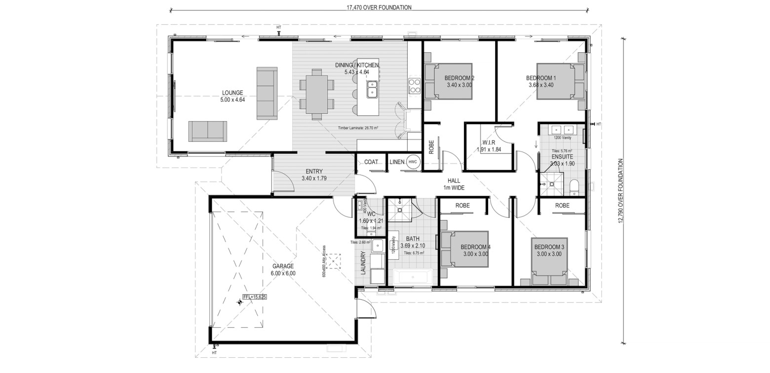
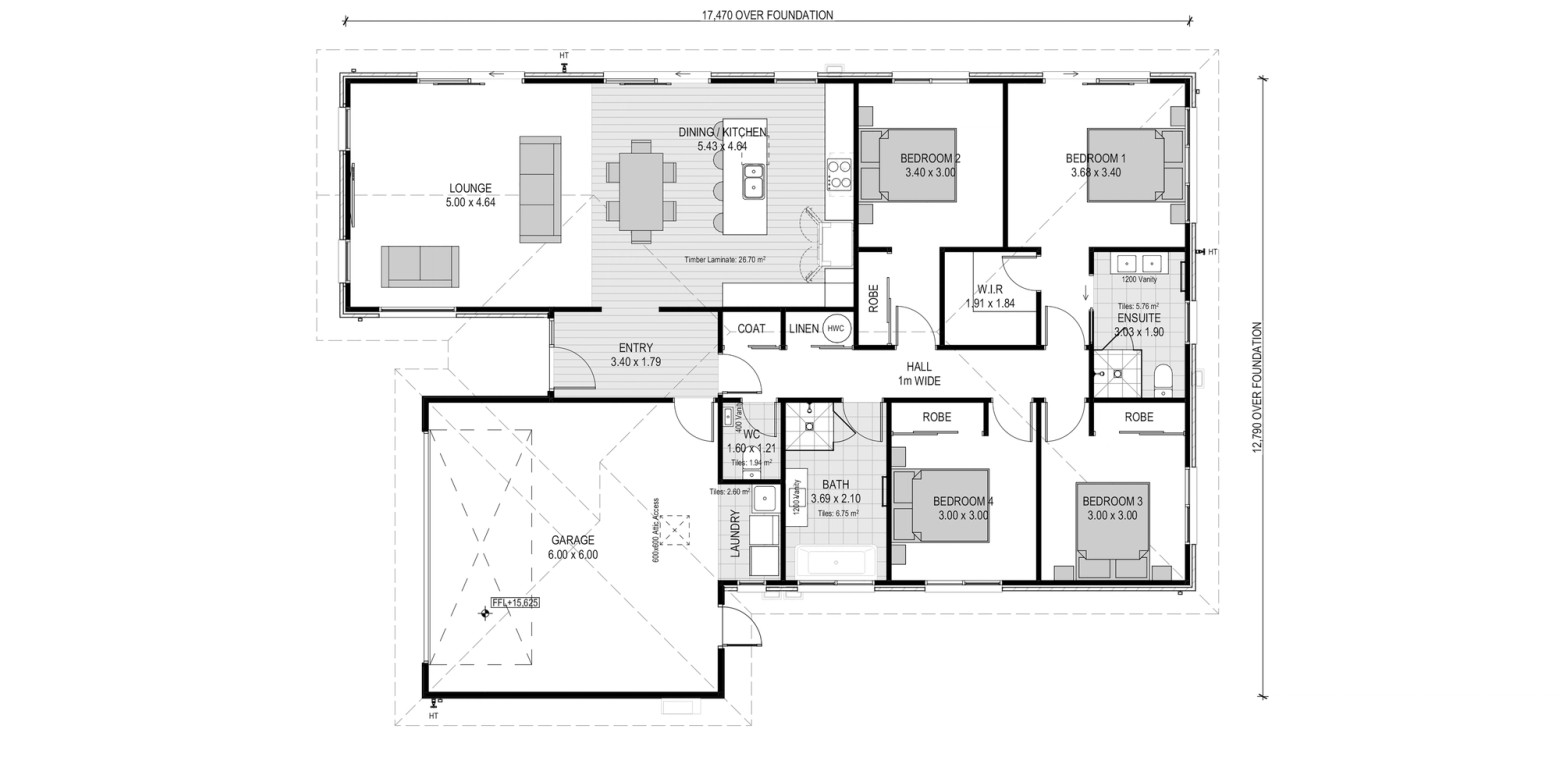
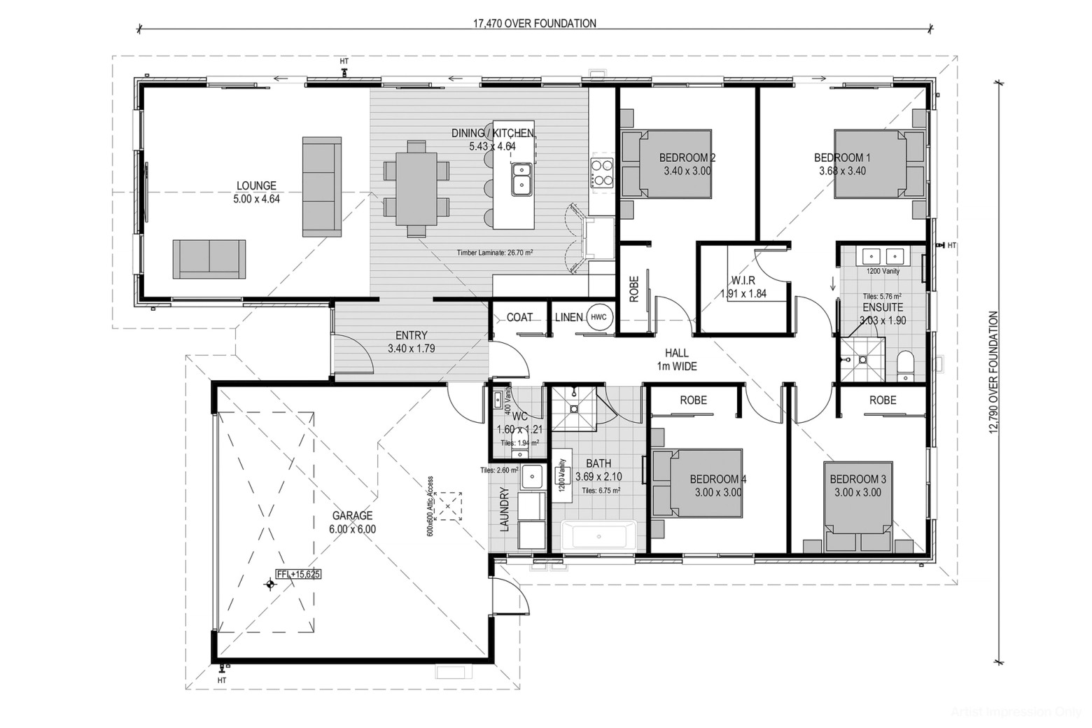
This stylish home combines a floor plan with attention to detail to maximise functionality and lifestyle.
The four double bedrooms are complemented by a family bathroom and ensuite, as well as a spacious open plan kitchen, dining and living area. This well-appointed North-facing living area opens to the outdoor entertaining area. An internal access double garage completes the package.

Lot 6 Paparoa Views, Kaiata Park
If you have any additional questions, please get in touch with our Sales team who will be more than happy to assist you.
If you have any additional questions, please get in touch with our Sales team who will be more than happy to assist you.
