Beachgrove Kaiapoi
7 McGarry Drive

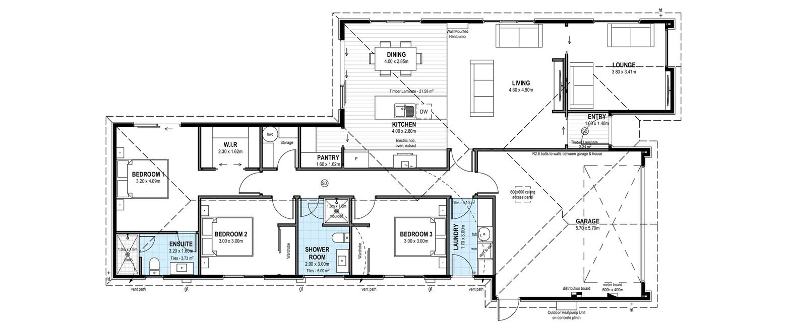
- Number of bedrooms:3
- Number of bathrooms:2
- Number of toilets:2
- Number of living spaces:2
- Garaging:2
- Floor size:180m²
This contemporary home offers a perfect balance of comfort, style, and functionality. With three generous double bedrooms, including a master with an ensuite, the home showcases ample room for families or those who love to entertain.
Beachgrove is a highly sought-after subdivision in the heart of Kaiapoi. It offers a blend of modern living and relaxed, suburban charm. A 25-minute drive from the centre of Christchurch, Beachgrove is ideally positioned for easy access to the city’s amenities while still offering the peaceful lifestyle of Kaiapoi.
Opening Times
Saturday12:00pm - 4:00pm
Sunday12:00pm - 4:00pm
Share this Property
Explore Floor Plans
Property Details
- Dwelling Size: 180m2
- Land Size: 412m2
Property Features
- Number of bedrooms:3
- Number of bathrooms:2
- Number of toilets:2
- Number of living spaces:2
- Garaging:2
- Floor size:180m²


Explore Floor Plans
Property Details
- Dwelling Size: 180m2
- Land Size: 412m2
Property Features
- Number of bedrooms:3
- Number of bathrooms:2
- Number of toilets:2
- Number of living spaces:2
- Garaging:2
- Floor size:180m²
Talk to the Team






