Buy a home and get a $10k holiday!
Learn MoreLot 461 Beach Grove

Lot 461 Beach Grove
749k
Lot 461 Beach Grove
749k
7 Croucher Street
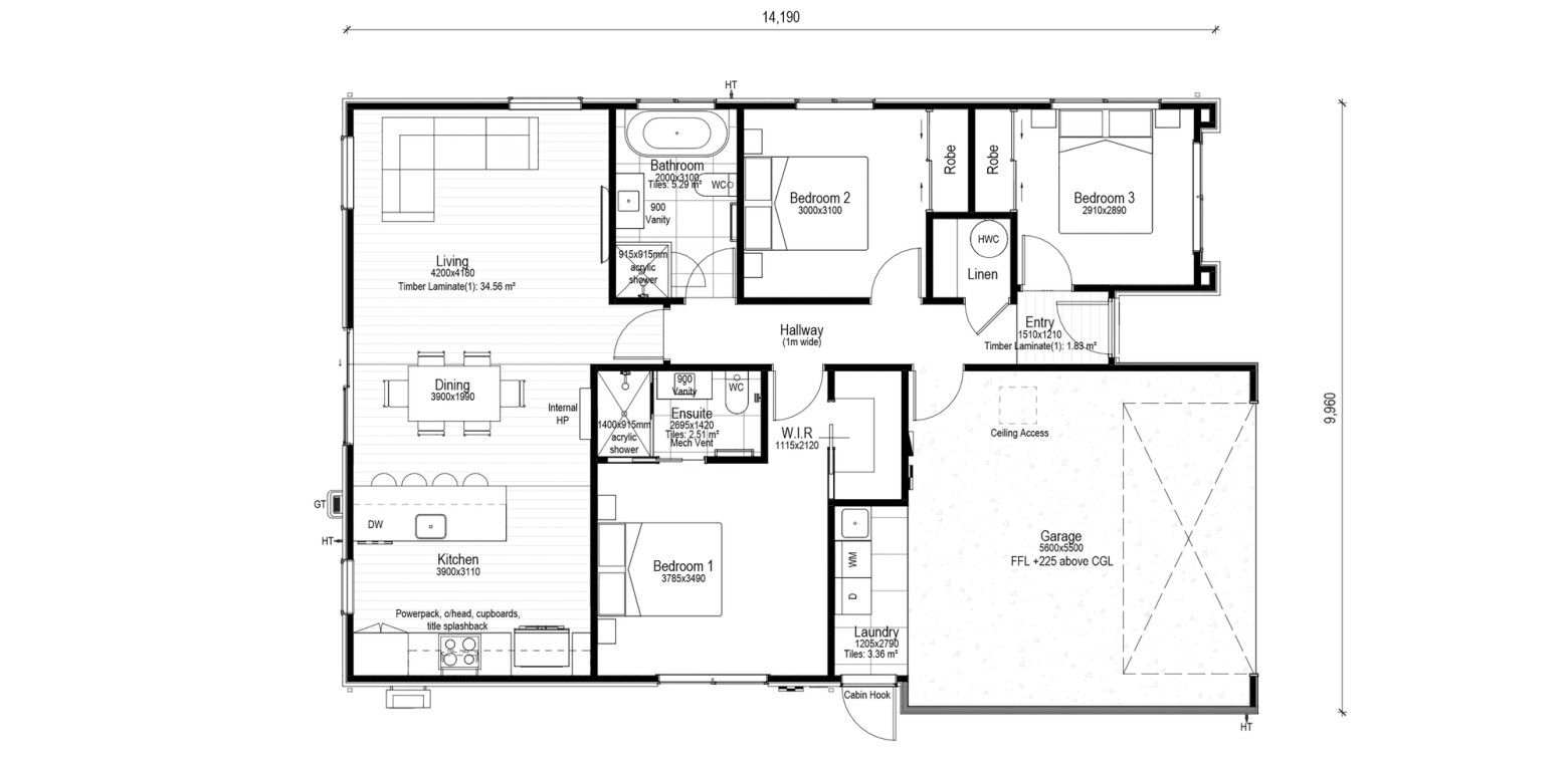
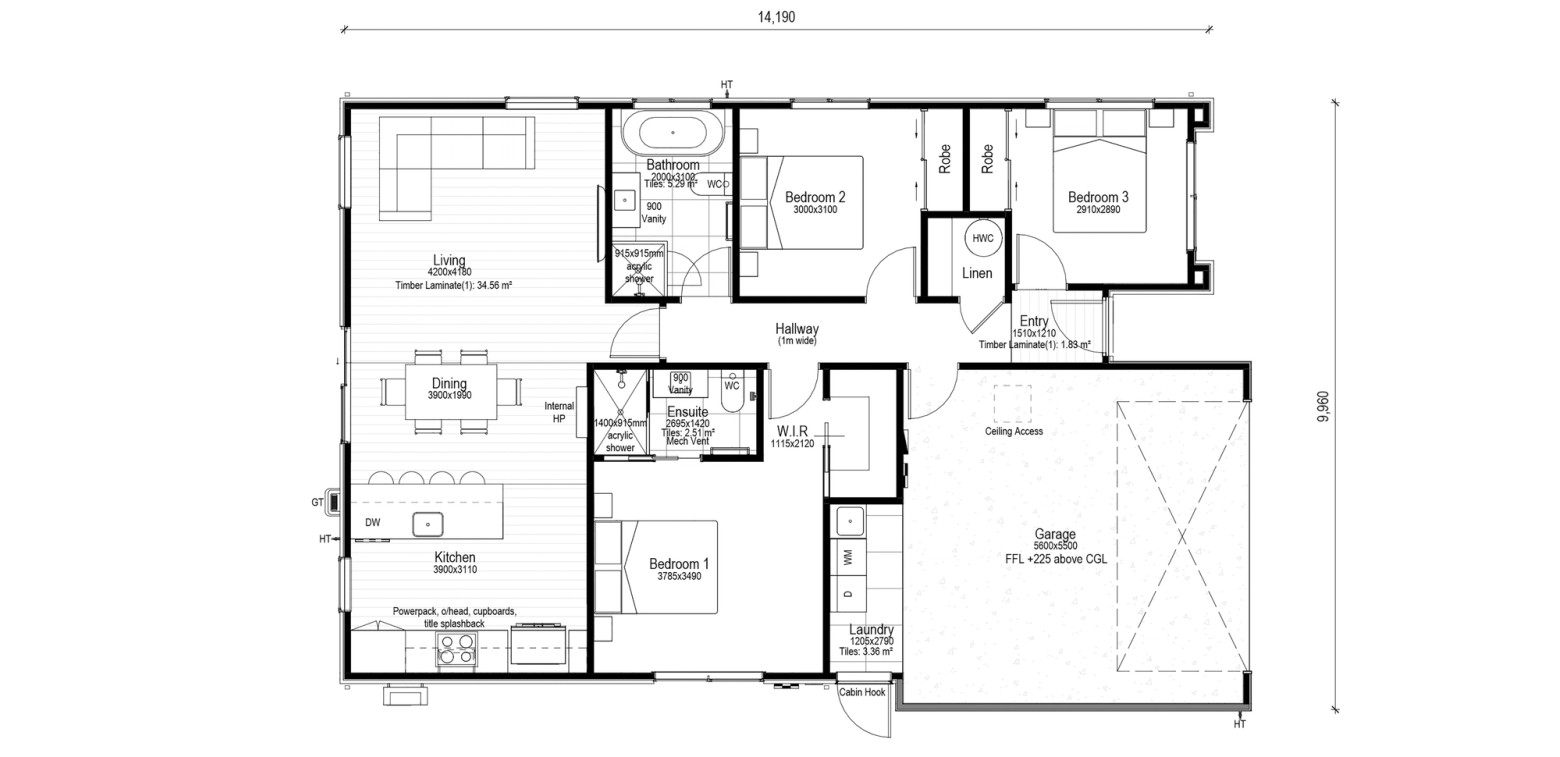
Lot 461, Croucher Street, Kaiapoi, North Canterbury, Canterbury
Offering three double bedrooms and an open plan living, kitchen and dining area, this home is perfectly designed to maximise space and indoor/outdoor flow.
The home features an internal access double garage and a fully landscaped private section perfect for entertaining. Complementing the living and bedroom spaces are the family bathroom and ensuite that are both well-appointed with quality fixtures and fittings.

Enquire
Lot 461, Croucher Street, Kaiapoi, North Canterbury, Canterbury
If you have any additional questions, please get in touch with our Sales team who will be more than happy to assist you.
If you have any additional questions, please get in touch with our Sales team who will be more than happy to assist you.
