Buy a home and get a $10k holiday!
Learn MoreLot 2

Lot 2
719k
Lot 2
719k
10A Nicolson St
Lot 2, 10A Nicolson Street, Allenton, Ashburton, Canterbury
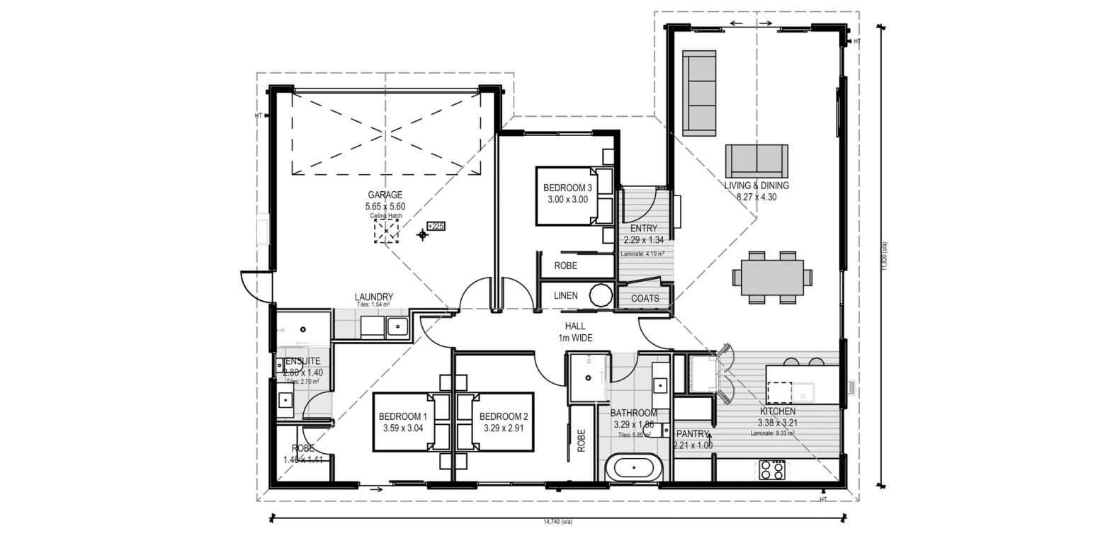
This home has a thoughtful floor plan that combines three double bedrooms, two bathrooms, a spacious open plan living area and a double garage. The well-appointed kitchen flows nicely with the North-facing living area to create an overall space that opens to the outdoor entertaining space. Finished with quality fixtures and fittings throughout and a landscaped section, this home offers great value and an easy lifestyle.

Enquire
Lot 2, 10A Nicolson Street, Allenton, Ashburton, Canterbury
If you have any additional questions, please get in touch with our Sales team who will be more than happy to assist you.
If you have any additional questions, please get in touch with our Sales team who will be more than happy to assist you.
