11 Naish Street
Lot 484 Beach Grove

11 Naish Street
Lot 484 Beach Grove
649k
- 2
- 1
- 2
- 1
- 1
- 123m2276m2
11 Naish Street
Lot 484 Beach Grove
$
649k
11 Naish Street
Lot 484, 11 Naish Street, Kaiapoi, North Canterbury, Canterbury
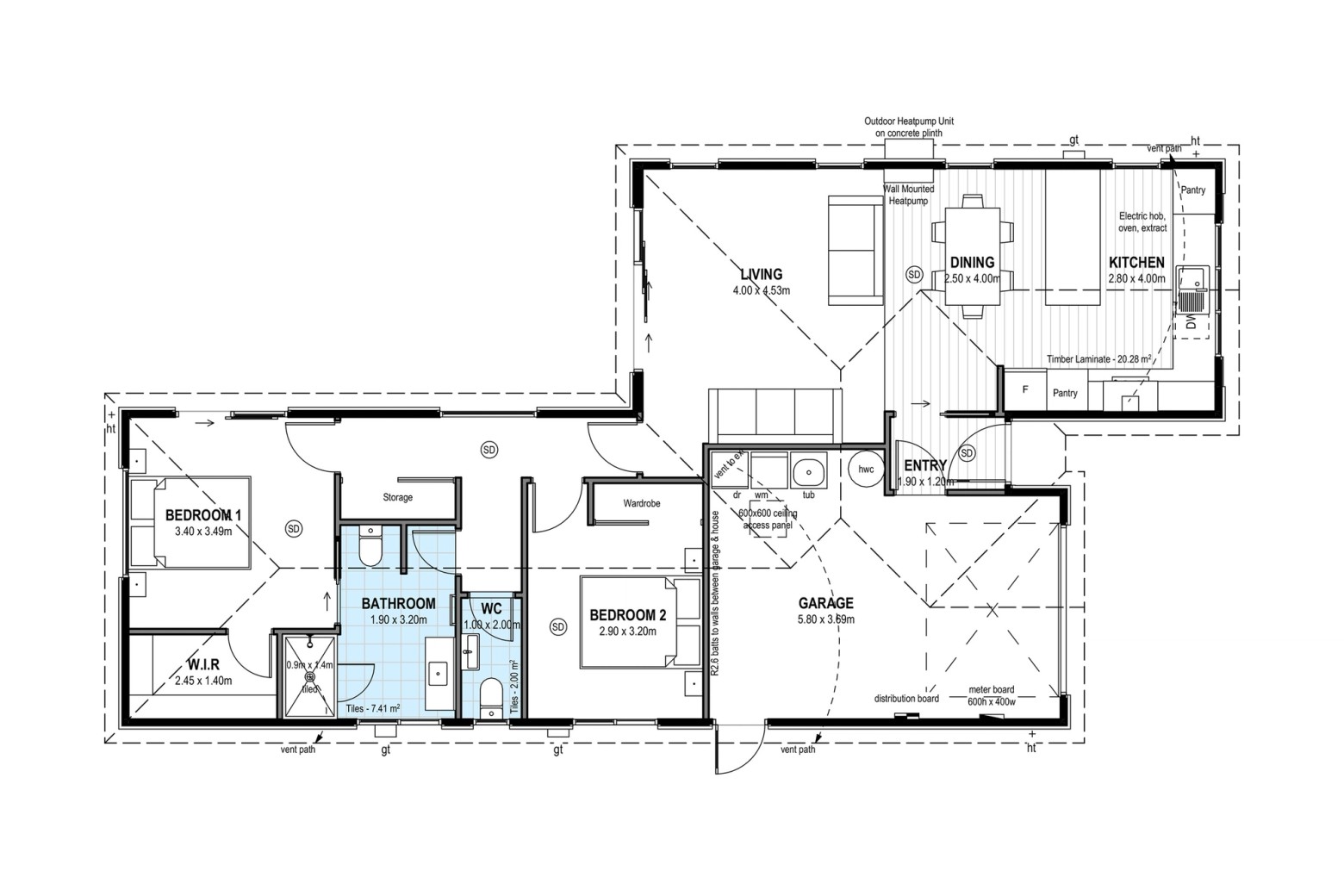
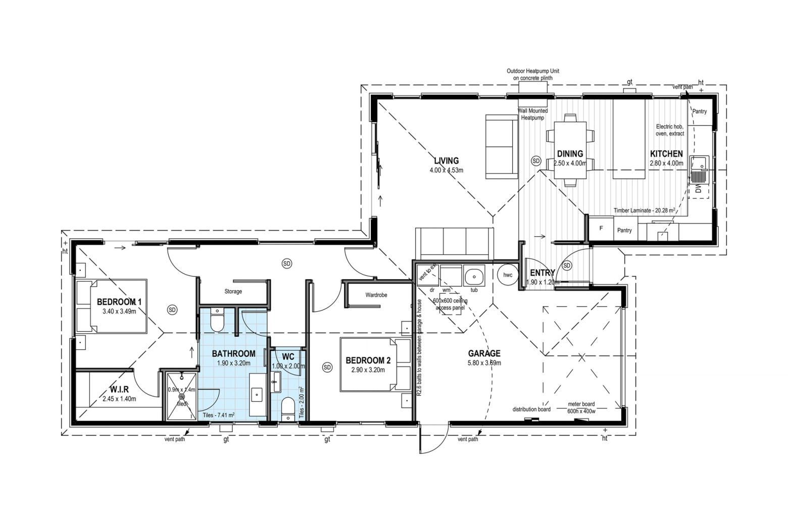
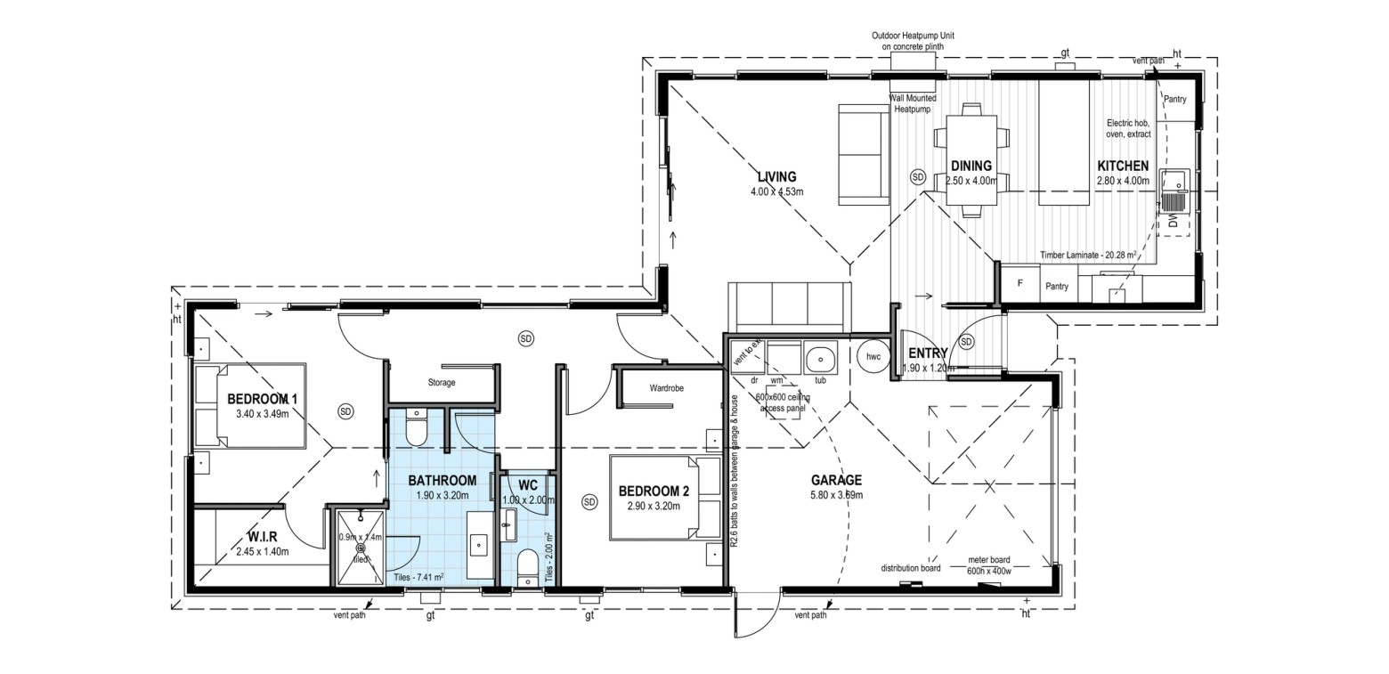
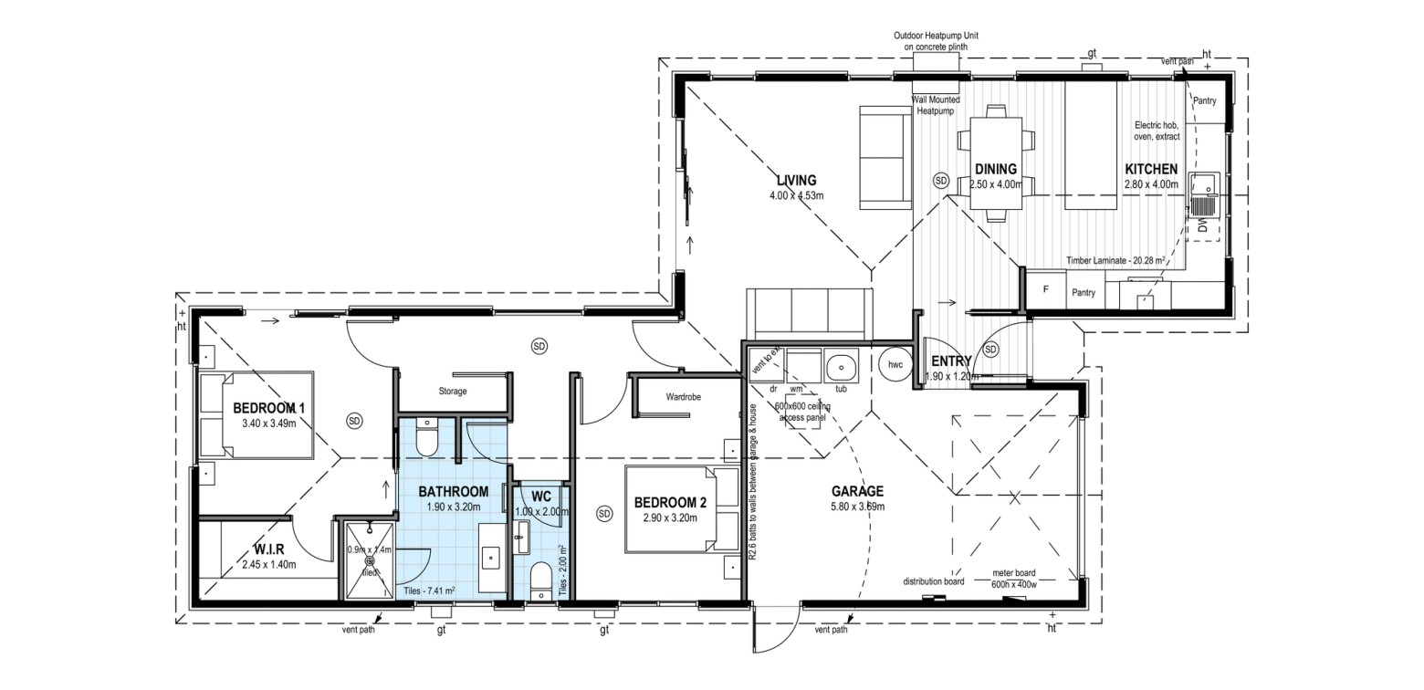
This attractive two double bedroom, one bathroom home has a spacious and practical floor plan that would suit a range of people and lifestyles.
A North facing open plan living/dining/kitchen area offers easy access to the outdoor entertaining area within the fully landscaped section. The home also offers an internal access single garage and quality fixtures and fittings throughout, plus it benefits from a good location close to all amenities.
Features
- Close to Local Amenities
- After Sales Care Program
- LED Lighting
- 10 Year Master Build Guarantee
- Samsung Appliances
- Separate WC
- Single Car Garaging
- Tiled Floors to Wet Areas

Enquire
Interested in this home?
Rangiora Team
Location and nearby Showhomes
Lot 484, 11 Naish Street, Kaiapoi, North Canterbury, Canterbury
FAQ's
Still have a question?
If you have any additional questions, please get in touch with our Sales team who will be more than happy to assist you.
Still have a question?
If you have any additional questions, please get in touch with our Sales team who will be more than happy to assist you.
