Buy a home and get a $10k holiday!
Learn MoreLot 621, Golden Sands

Lot 621, Golden Sands
909k
Lot 621, Golden Sands
909k
Empire Crescent
Lot 621, 73 Empire Crescent, Papamoa, Tauranga, Bay of Plenty
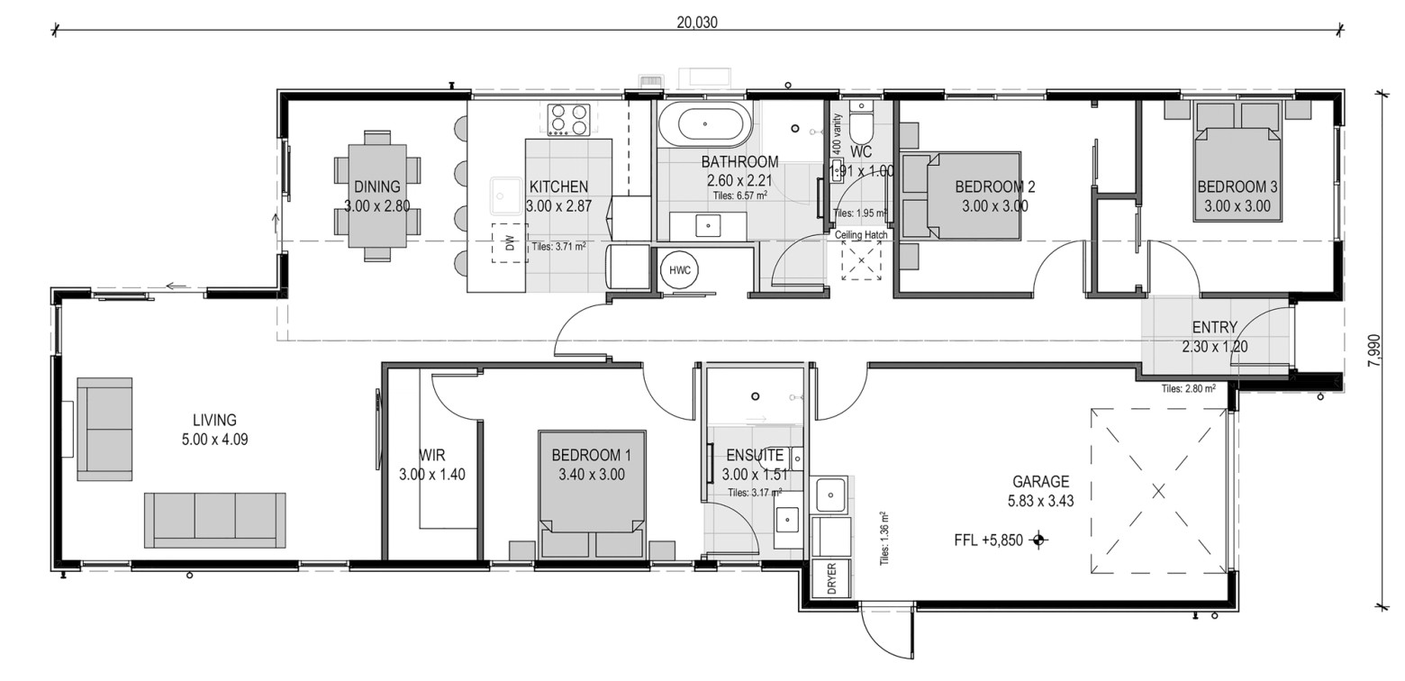
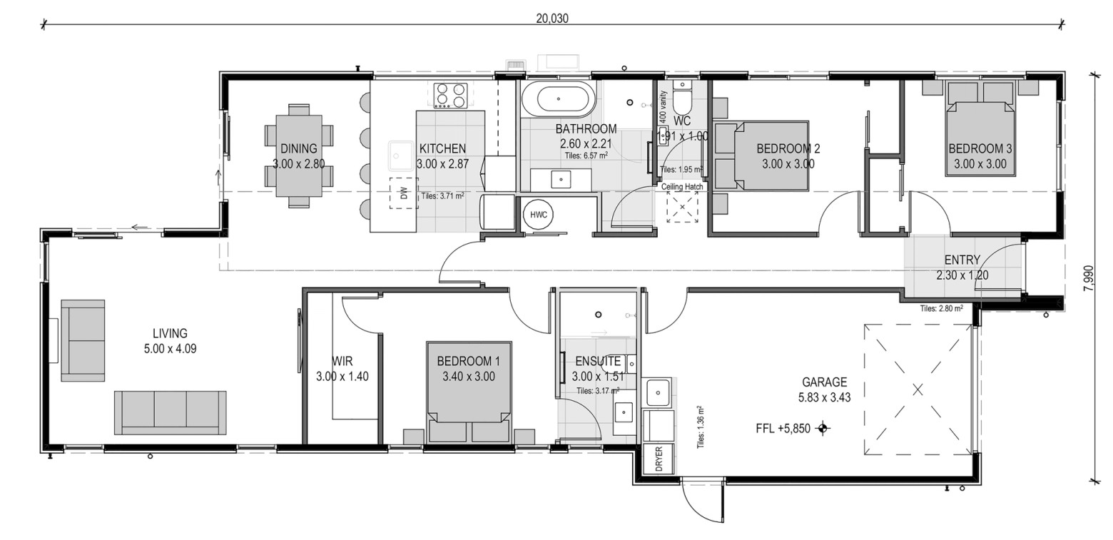
Set on a fully landscaped section, this home has been thoughtfully designed to maximise space and comfortable living.
With three double bedrooms, a family bathroom and an ensuite, the home is well appointed and suited to a range of lifestyles. The open plan living, kitchen and dining area creates a spacious central hub that integrates nicely with the outdoor entertaining area and the garden. Located in a popular area within close proximity to schools, shops and other amenities, this home presents great value for those looking for a new family home.

Enquire
Lot 621, 73 Empire Crescent, Papamoa, Tauranga, Bay of Plenty
If you have any additional questions, please get in touch with our Sales team who will be more than happy to assist you.
If you have any additional questions, please get in touch with our Sales team who will be more than happy to assist you.
