Buy a home and get a $10k holiday!
Learn MoreHouse 6, 4 Don Peebles Way

House 6, 4 Don Peebles Way
685k
House 6, 4 Don Peebles Way
685k
4 Don Peebles Way
4 Don Peebles Way, Belfast, Christchurch City, Canterbury
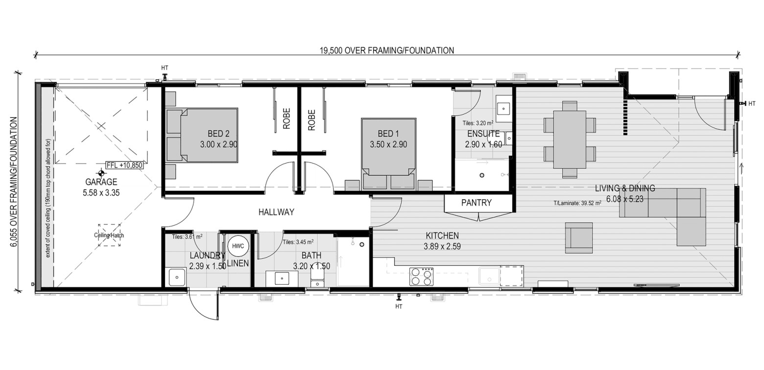
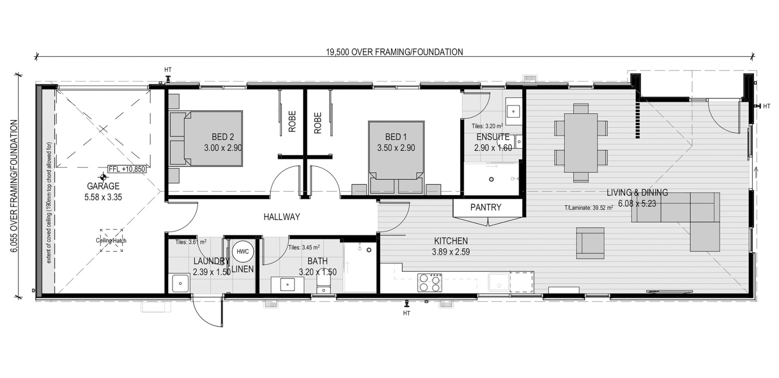
Nestled on a beautifully landscaped section, this thoughtfully crafted home blends smart design with everyday comfort.
Inside, you’ll find three well-proportioned bedrooms that offer ample space for rest, work, or family needs. The stylish family bathroom provides both functionality and flair, while the private ensuite adds an extra touch of convenience and luxury. With its practical layout and refined finishes, this property caters perfectly to a wide variety of lifestyles, from growing families to professional couples seeking a low-maintenance, contemporary home.

Enquire
4 Don Peebles Way, Belfast, Christchurch City, Canterbury
If you have any additional questions, please get in touch with our Sales team who will be more than happy to assist you.
If you have any additional questions, please get in touch with our Sales team who will be more than happy to assist you.
