Milldale, Silverdale Auckland
100 Waiwai Drive

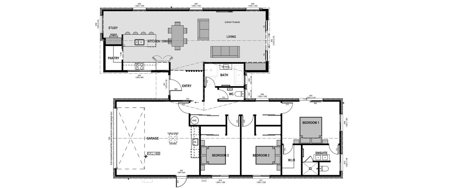
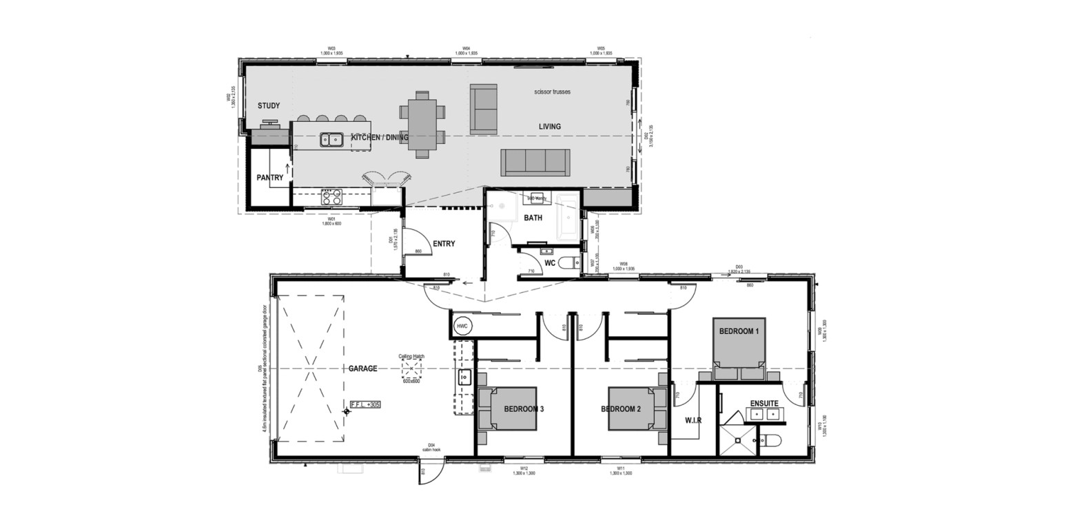
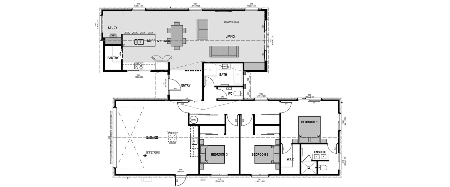
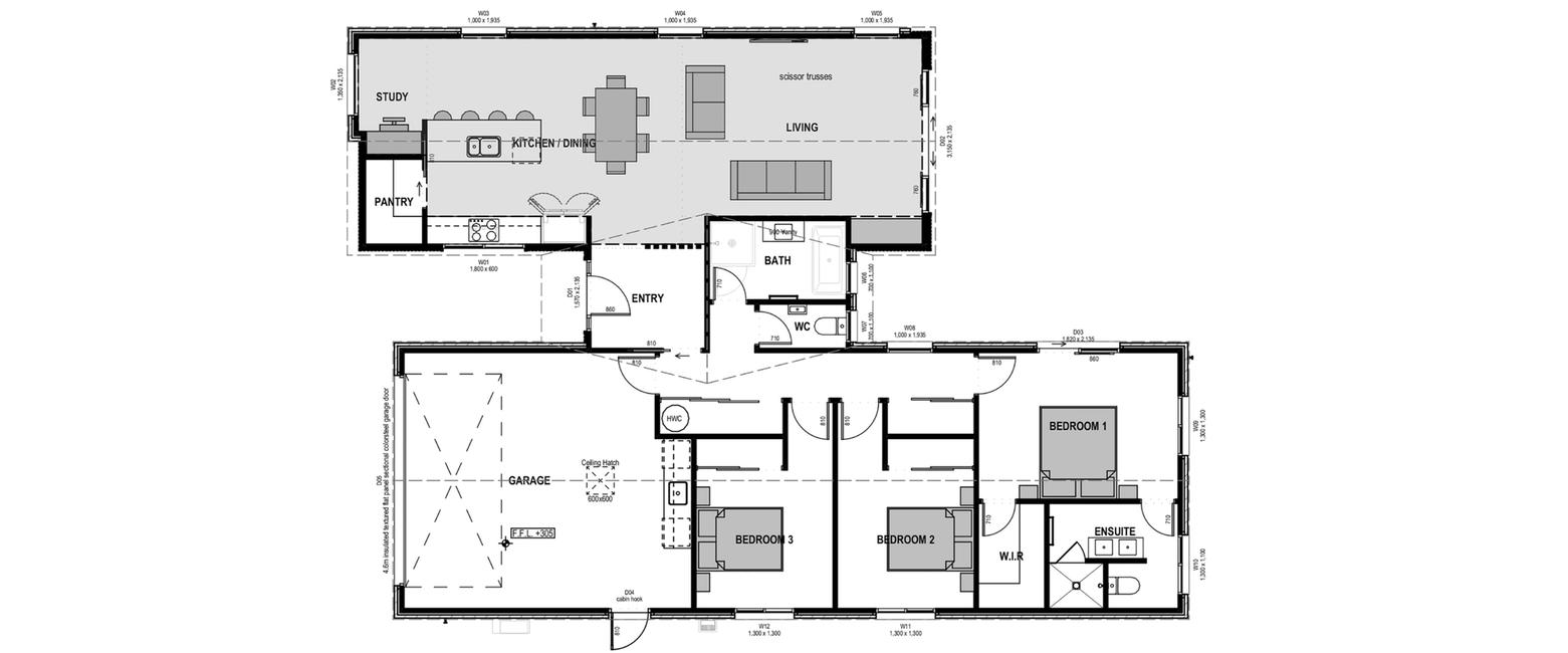
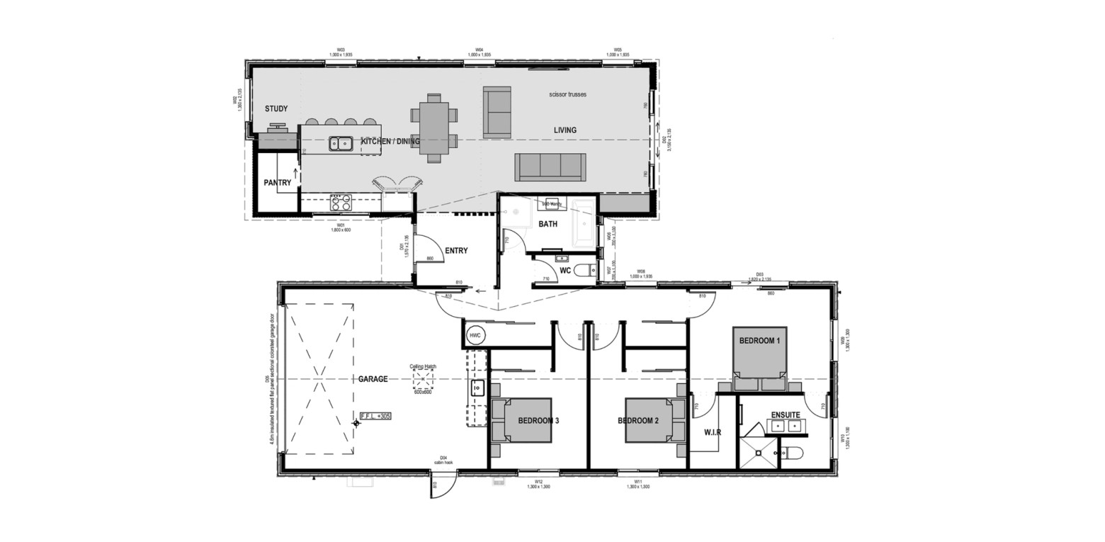
- Number of bedrooms:3
- Number of bathrooms:2
- Number of toilets:2
- Number of living spaces:1
- Garaging:2
- Floor size:180m²
This stunning Milldale Show Home offers three double bedrooms, an open-plan living room, a kitchen, a dining area, and an internal access double garage. Designed to optimise space and indoor/outdoor flow into a fully landscaped North-facing section - perfect for entertaining. Complementing the living and bedroom spaces are a family bathroom, separate toilet, and ensuite. Our standard specifications are on display so you will see our high-quality fixtures and fittings, including stone benchtops and Samsung appliances.
Situated 25 minutes north of Auckland City and neighbouring Millwater, everything to make yourself home is already at your doorstep. Moments away from the expanding Silverdale, Highgate Business Park and Silverdale Industrial Centre, residents are zoned for public and private schools and can enjoy the growing number of cafes, restaurants, and entertainment options.
Opening Times
Share this Property
Explore Floor Plans
Property Details
- Dwelling Size: 181m2
- Land Size: 400m2
Property Features
- Number of bedrooms:3
- Number of bathrooms:2
- Number of toilets:2
- Number of living spaces:1
- Garaging:2
- Landscaping:✓
- Floor size:181m²


Explore Floor Plans
Property Details
- Dwelling Size: 181m2
- Land Size: 400m2
Property Features
- Number of bedrooms:3
- Number of bathrooms:2
- Number of toilets:2
- Number of living spaces:1
- Garaging:2
- Landscaping:✓
- Floor size:181m²
Talk to the team






