
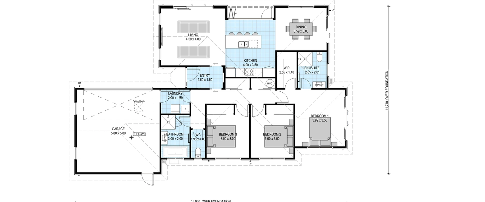
- Number of bedrooms:3
- Number of bathrooms:2
- Number of toilets:2
- Number of living spaces:1
- Garaging:2
- Floor size:159m2
This three double bedroom, double garage home has been designed to maximise space and sun. The North-facing open plan living, dining and kitchen area forms the centre of the home and offers great indoor/outdoor flow. The well-appointed family bathroom and ensuite feature quality fixtures and fittings that complement the spacious bedroom and living areas.
Whether starting out or slowing down, growing your portfolio or expanding your family, Strowan Fields is the ideal place to take the next step on your property journey. With manageable sections, a picture-perfect setting and a strong sense of community, it’s the ideal spot to invest in your future. At its core, the Strowan Fields vision is simple – to create a community of quality homes with beautiful streetscapes, plenty of green spaces, and many breathtaking views!
Opening Times
Share this Property
Explore Floor Plans
Property Details
- Dwelling Size: 159m2
- Land Size: 530m2
Property Features
- Number of bedrooms:3
- Number of bathrooms:2
- Number of toilets:2
- Number of living spaces:1
- Garaging:2
- Landscaping:✓
- Floor size:159m2


Explore Floor Plans
Property Details
- Dwelling Size: 159m2
- Land Size: 530m2
Property Features
- Number of bedrooms:3
- Number of bathrooms:2
- Number of toilets:2
- Number of living spaces:1
- Garaging:2
- Landscaping:✓
- Floor size:159m2



