Fraser

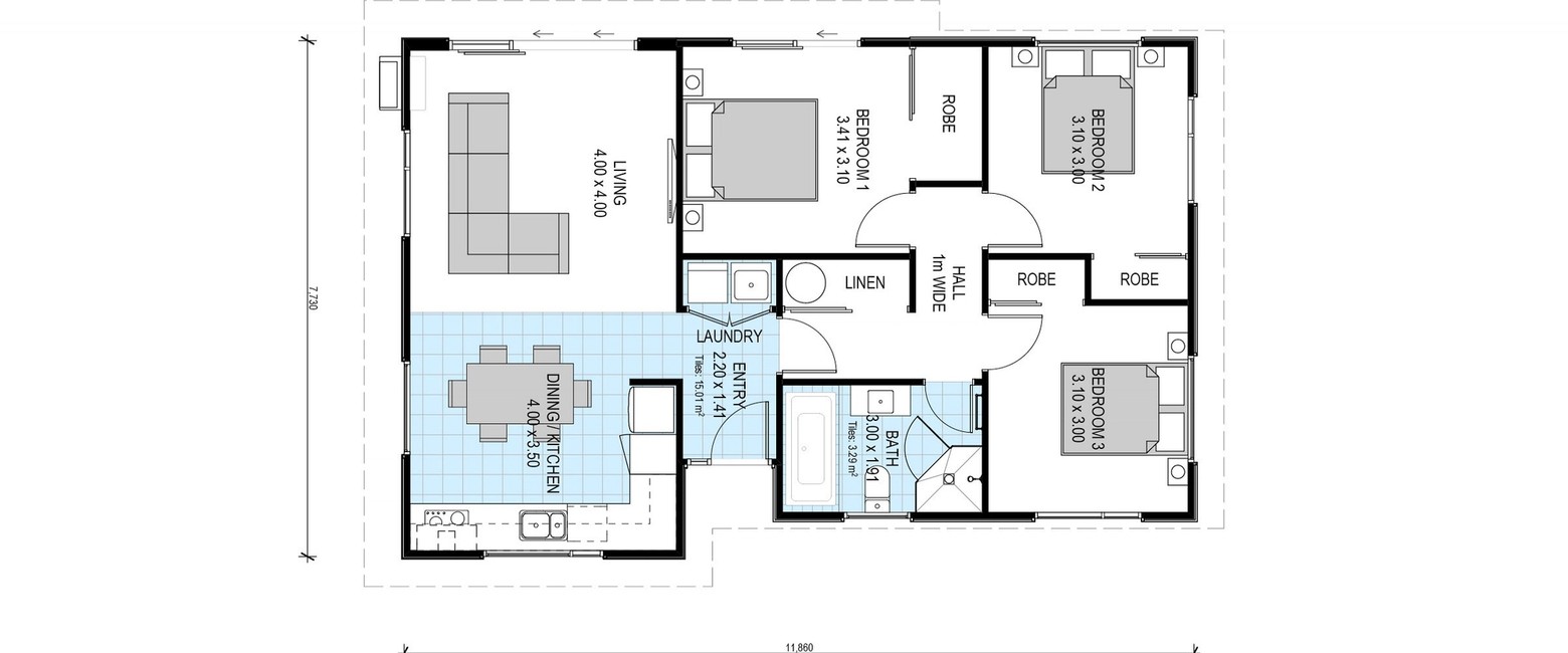
- Number of bedrooms:3
- Number of bathrooms:1
- Number of toilets:1
- Number of living spaces:1
- Floor size:86m²
Offering great comfort and a practical floor plan, the Fraser design combines a thoughtful layout with great use of space.
The home includes three bedrooms and open plan living, kitchen and dining.
The Entry Collection is ideal for those who desire a smaller home or are at the beginning of their journey, our Entry Collection encompasses a range of plans representing the best in achievable contemporary living.
If you’re starting your design and build journey, and not sure to where to begin, we have a range of concept plans to help you get inspired.
You can work alongside one of our design and build consultants to tailor any of our plans so your new home is unique. Whether you want to add extra floor space or custom design features, we can help you realise your vision.
Explore Floor Plans
Property Details
- Dwelling Size: 86m2
Property Features
- Number of bedrooms:3
- Number of bathrooms:1
- Number of toilets:1
- Number of living spaces:1
Key Features
- Open Plan Living
- Separate Laundry
- Neutral Decor
- Three Bedrooms
- Ideal for First Home Buyers


Explore Floor Plans
Property Details
- Dwelling Size: 86m2
Property Features
- Number of bedrooms:3
- Number of bathrooms:1
- Number of toilets:1
- Number of living spaces:1
Key Features
- Open Plan Living
- Separate Laundry
- Neutral Decor
- Three Bedrooms
- Ideal for First Home Buyers
Build to Last

Samsung Home Appliances
Samsung offers a range of innovative and award-winning home appliances. Their product lineup includes refrigerators, laundry machines, cooking appliances, and vacuums.

ITM
At ITM we always receive top quality products and expert knowledge from the friendly team who understand how important it is that they get it right the first time.

Misco Joinery
Misco craft bespoke kitchens that blend artistry and functionality. With years of experience, Misco's team of skilled craftsmen and designers are passionate about creating kitchens tailored to your unique style and needs.
More Plans
Discover More
Whether you're building your first home, designing your dream home, or looking to invest. Mike Greer Homes has you covered.

Looking to invest in property?
The property investment sector in New Zealand, is experiencing phenomenal growth in the recent years. Investing in a rental property or two, or more, is a Kiwi tradition. If you’re keen to get started with an investment property portfolio, or already a property investor, it pays to have a chat with Mike Greer Homes.

Looking to build your first home
There has never been a better time to build your own home with Mike Greer Homes. Buying your first home is a big and exciting step, but it can also be overwhelming. We are here to help! There’s a huge amount of information out there. However, when you break it down, buying a house isn’t actually that hard. You might just need a little help.













