242 Armagh Street
Christchurch CBD, Christchurch






242 Armagh Street
Christchurch CBD, Christchurch
- 2
- 1
- 1
- 1
- 70m2
- 2
- 1
- 1
- 1
- 70m2
242 Armagh Street
Christchurch CBD, Christchurch
- 2
- 1
- 1
- 1
- 70m2
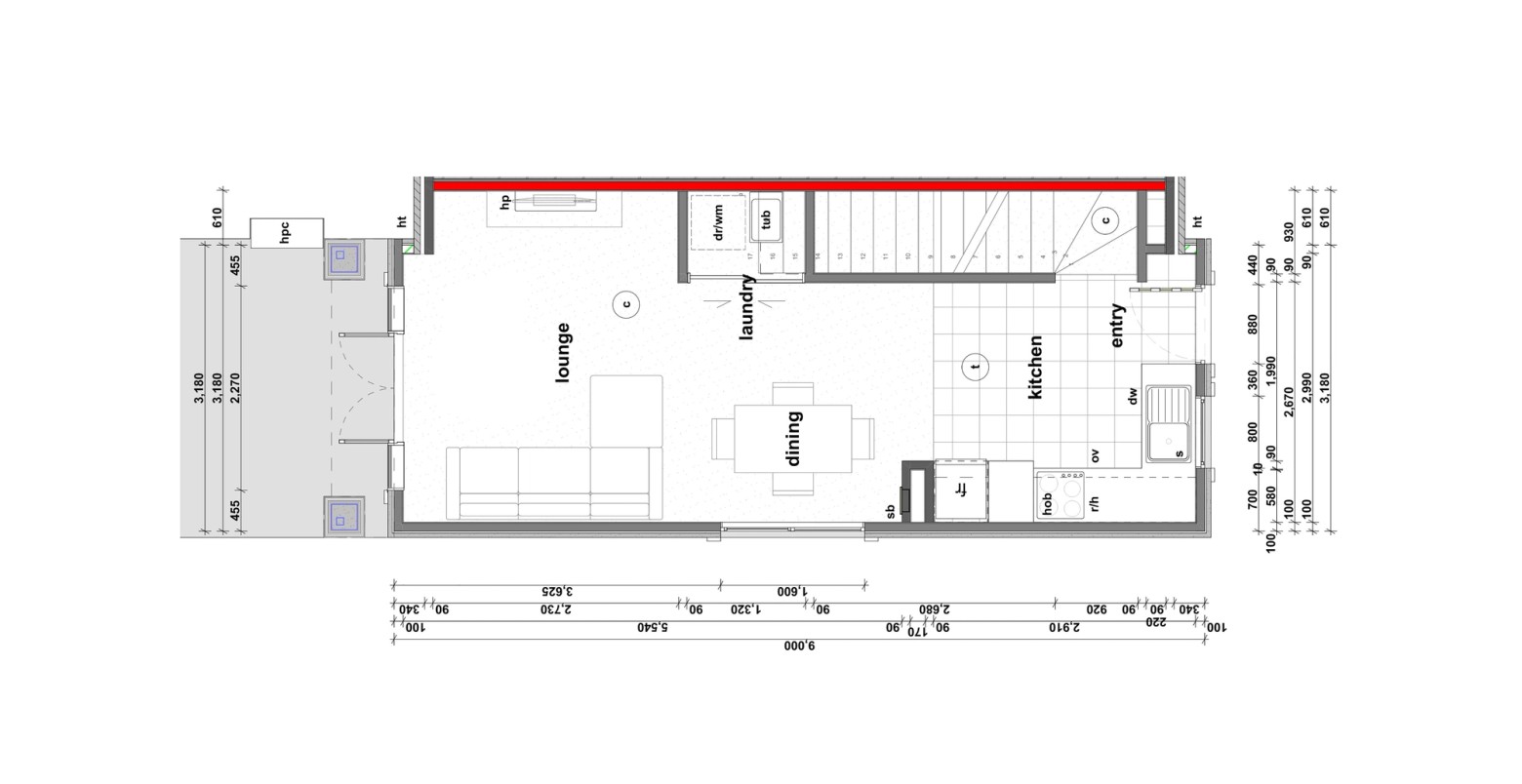
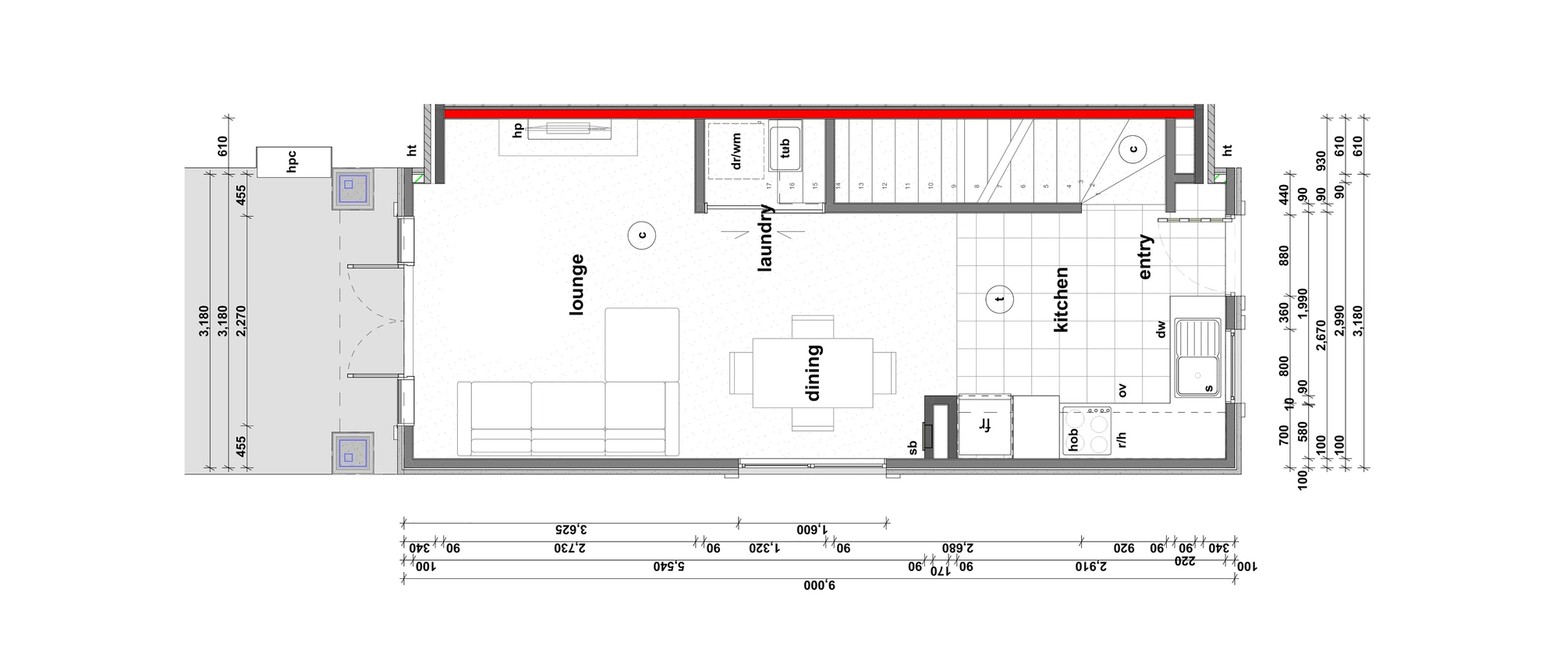
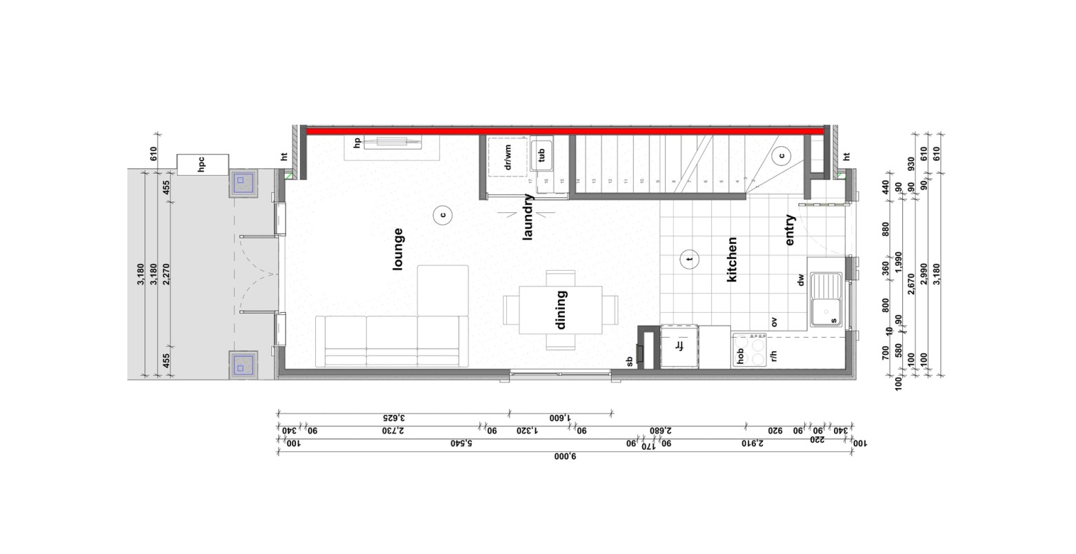
Contemporary three-storey living in central Christchurch, just steps from the city’s key amenities, One Stadium and green spaces.
This three-storey home is designed for easy, low-maintenance living, featuring an open plan kitchen, dining and living area, two well-sized bedrooms with ample storage, and two fully tiled bathrooms. A private outdoor space completes the home.
Located within the Madras Square development in central Christchurch, this home offers a convenient city lifestyle with everything close by. Positioned along the East Frame, you’ll enjoy easy access to green spaces and walkways, all within walking distance of the CBD, key workplaces, local attractions, and the new covered stadium.
Showhome times
Wednesday
12:00pm - 4:00pm
Thursday
12:00pm - 4:00pm
Friday
12:00pm - 4:00pm
Saturday
12:00pm - 4:00pm
Sunday
12:00pm - 4:00pm

Enquire






